Transformation du groupe scolaire du Bouchet à Bonneville
-

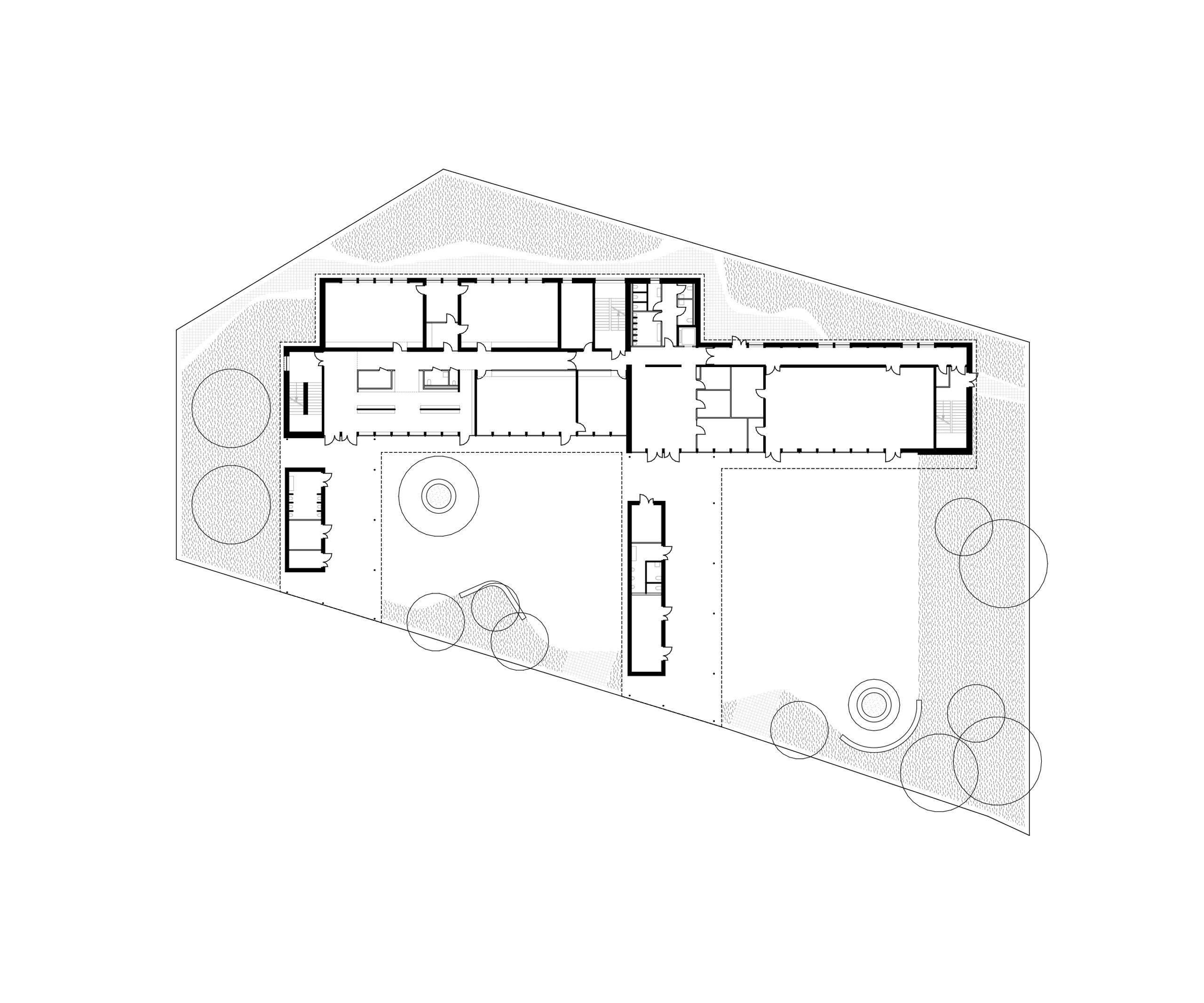
Plan de masse
N -

Axonométrie
-

Axonométrie déconstruction
-

Axonométrie construction
-

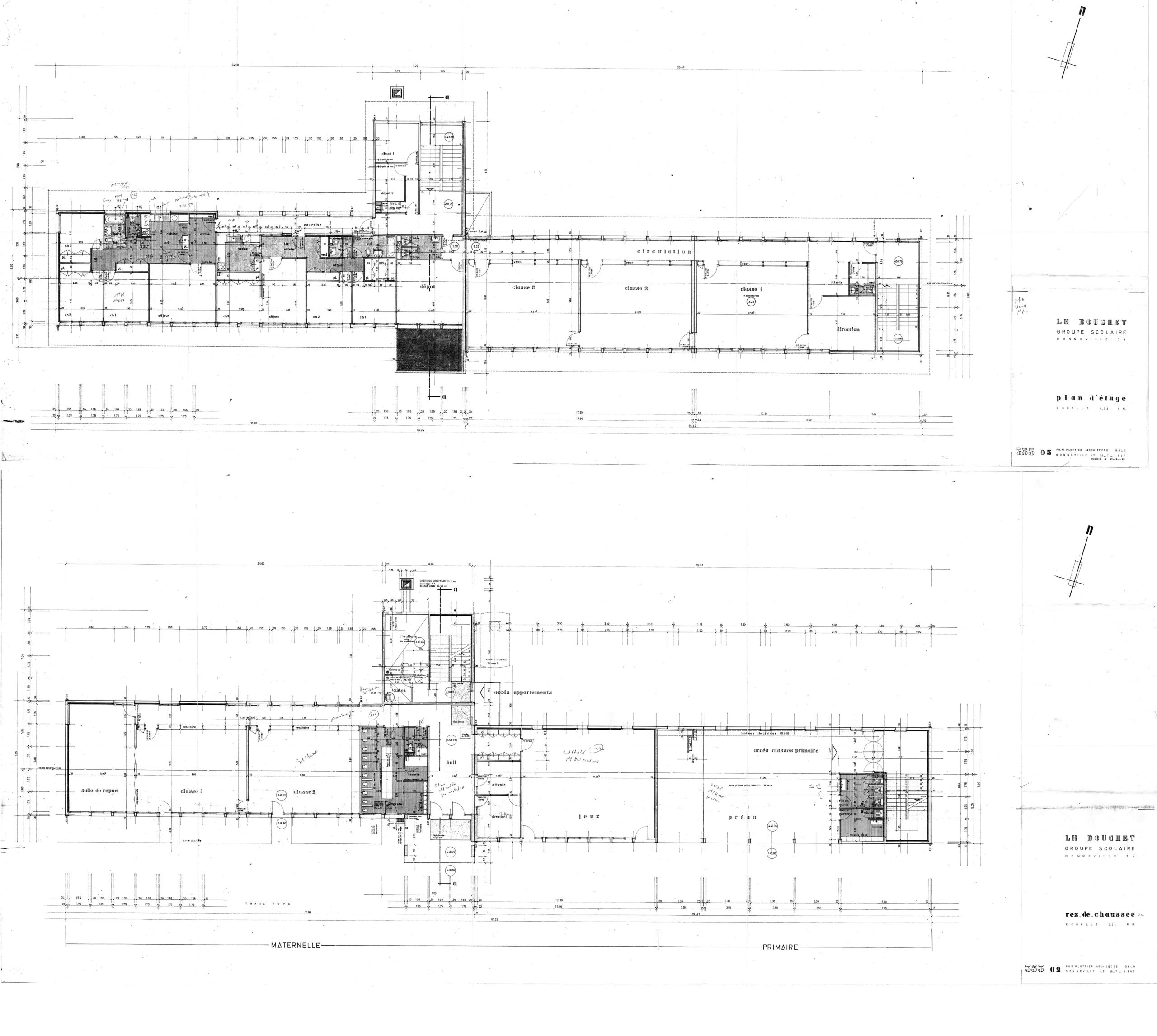
Plan RDC
-

Plan R+1
-

Plan R+2
-

Coupe transversale
-

Façade sud
-

Axonométrie détail
Description du projet
La restructuration lourde de ce patrimoine moderne ordinaire révèle son potentiel d’évolution. Construits dans les années 1960, les bâtiments reposent sur une structure régulière en béton armé. Non isolés et altérés par des ajouts successifs, ils étaient devenus dysfonctionnels. Après curage, désamiantage, déconstruction partielle et renforcement des ouvrages existants, l’intervention se traduit par une surélévation-extension en ossature bois dotée d’une enveloppe thermique performante. Deux préaux neufs, implantés perpendiculairement au bâtiment principal, redéfinissent les cours.
Caractéristiques
- Adresse96 rue du comte vert, Bonneville, Haute-Savoie
- Dates2022-2025
- Programme5 classes maternelles, 6 classes élémentaires
- Surface2 707 m2
- Budget6,5 M€
- RéglementationRT Existant – 70 %
- Émissions1 100 kgCO2eq/m2
- Consommation38 kWh/m2/an
- LabelsBâtiment biosourcé niveau 3
- ParticularitésExtension en structure bois, isolation en laine de bois, chappe sèche, centrale de traitement d’air thermodynamique
Acteurs
- Maîtrise d’ouvrageMairie de Bonneville
- Maîtrise d’œuvreTectoniques (architecte, mandataire), Tectoniques Ingénieurs (économiste, fluides, structure bois, structure béton, OPC), eEgenie (QEB), Alp'VRD (VRD)
- PhotographiePierrick Durand-Glouchkoff, Tectoniques































