Réhabilitation et extension de la Maison du parc du Haut-Jura à Lajoux
Description du projet
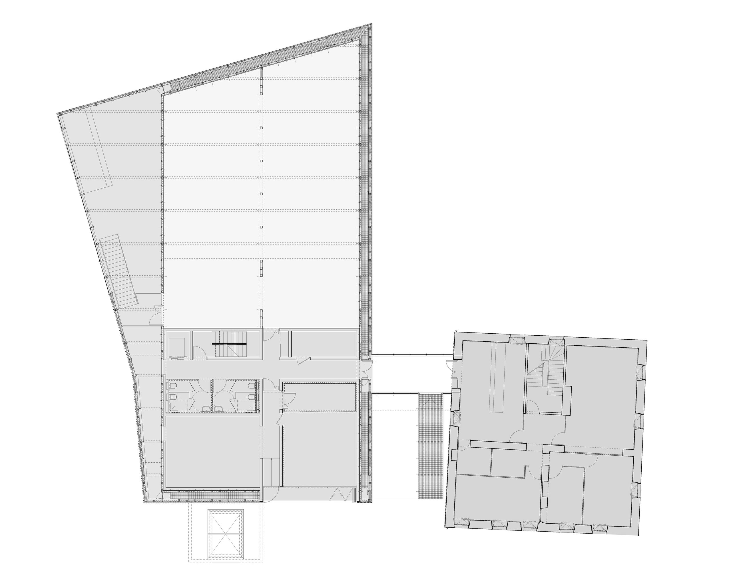
L’extension de la Maison du parc du Haut-Jura réinterprète des éléments d’architecture vernaculaire en les associant à des dispositifs environnementaux passifs. Sa volumétrie compacte, inspirée des maisons traditionnelles, est étirée côté rue afin de s’insérer dans le tissu existant. La déformation du volume, les proportions des ouvertures aboutissent à une forme plus abstraite, à la fois étrange et familière. Une double peau crée un espace intermédiaire qui joue le rôle de tampon thermique. Le projet mobilise ressources et savoir-faire locaux, notamment un bardage en tavaillons d’épicéa qui enveloppe uniformément les façades.
Caractéristiques
- Adresse25ter Le Village, Lajoux, Jura
- Dates2002-2004
- ProgrammeEspaces d'exposition, de réunion et de projection, bureaux
- Surface1 835 m2
- Budget2,2 M€
- ParticularitésChaudière bois alimentée en plaquettes forestières, bois du Jura, tavaillons d’épicéa, récupération des eaux pluviales pour les usages sanitaires
- DistinctionsLabel architecture contemporaine remarquable du ministère de la Culture
- ParutionsEcologik – avril 2008, Habiter écologique – 2009, Guide technique – 2009
Acteurs
- Maîtrise d’ouvrageParc naturel régional du Haut-Jura
- Maîtrise d’œuvreTectoniques (architecte, mandataire), Adelfo Scaranello (architecte associé), Ilex (paysagiste), CET ingénierie (électricité, fluides, structure béton), ECPI (économiste)
- PhotographieAndré Morin, Erick Saillet






















