Réhabilitation de l’ancien IGH Émile Loubet à Saint-Étienne
-

Plan de masse
N -

Axonométrie
-

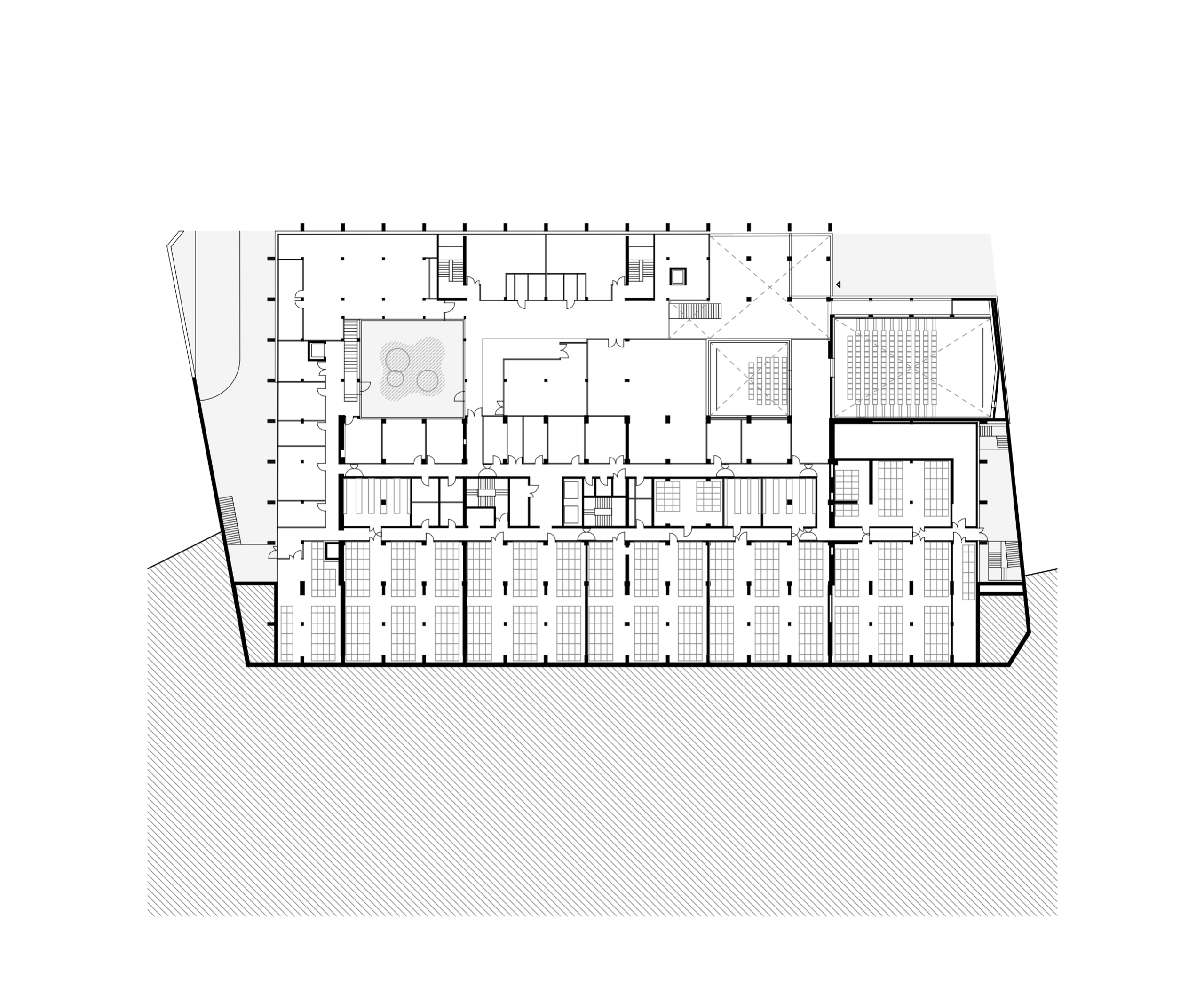
Plan RDC
-

Plan étage courant
-

Coupe transversale
-

Façade nord
Description du projet
Le projet consiste à transformer un ensemble déconsidéré, emblématique de l’architecture administrative des années 1970, composé d’un socle et d’une tour, en un équipement urbain mixte accueillant cinémathèque, archives municipales, pôle mémoriel, direction de la police municipale, logements étudiants et bureaux. Il repose sur deux principes: révéler les qualités intrinsèques et le potentiel de l’existant par un travail de curage et de restauration; assumer des interventions ponctuelles et lisibles: soustraction d’un angle du socle pour améliorer la relation à l’espace public, ajout d’un escalier de secours et addition d’un volume en attique.
Caractéristiques
- Adresse3 place Sainte Barbe, Saint-Étienne, Loire
- DatesEn chantier depuis 2018
- ProgrammePôle patrimonial (POPA), Direction Police et sécurité civile municipales (DPSCM), Siège social Habitat et Métropole, résidence étudiante de 51 logements, archives municipales et parking silo
- Surface22 300 m2
- Budget31,1 M€
- RéglementationRT Existant – 40 %
- Consommation53,8 kWh/m2/an
- ParticularitésIsolation intérieure fibre de bois, restauration des pierres de façade
- ParutionsHabitat & Métropole – octobre 2024, Le Progrès – octobre 2024
Acteurs
- Maitrise d’ouvrageEPASE, Ville de Saint-Etienne, Habitat et Métropole
- MandataireTectoniques (architecte)
- Maitrise d’œuvreDominique Vigier (architecte), Tectoniques Ingénieurs (économiste, électricité, fluides, QEB, structure béton), Gamba (acousticien), Numéro 111 (Design d'intérieur), Setec (OPC), Namixis (SSI)
- PhotographieVladimir de Mollerat du Jeu













