Groupe scolaire Dominique Frelaut à Colombes
-

Plan de masse
N -

Axonométrie
-

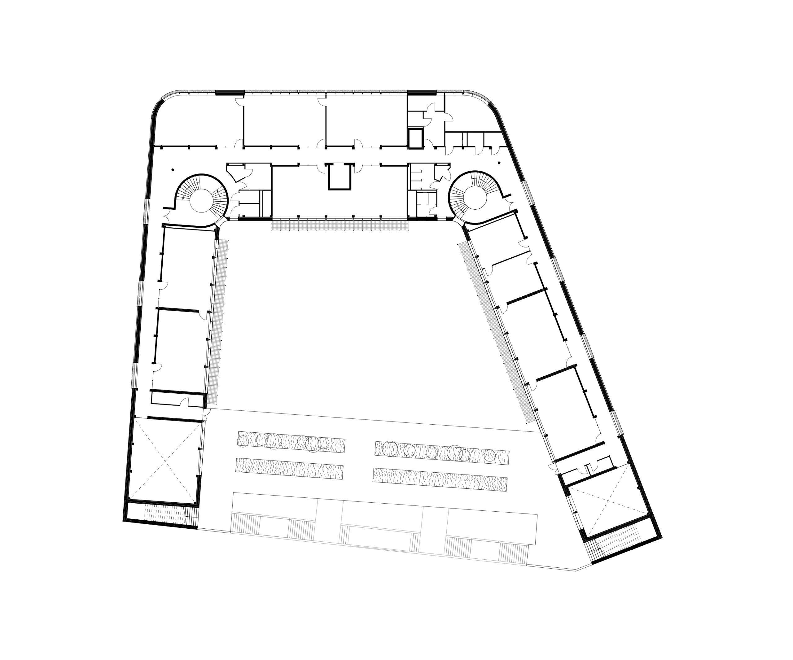
Plan RDC
-

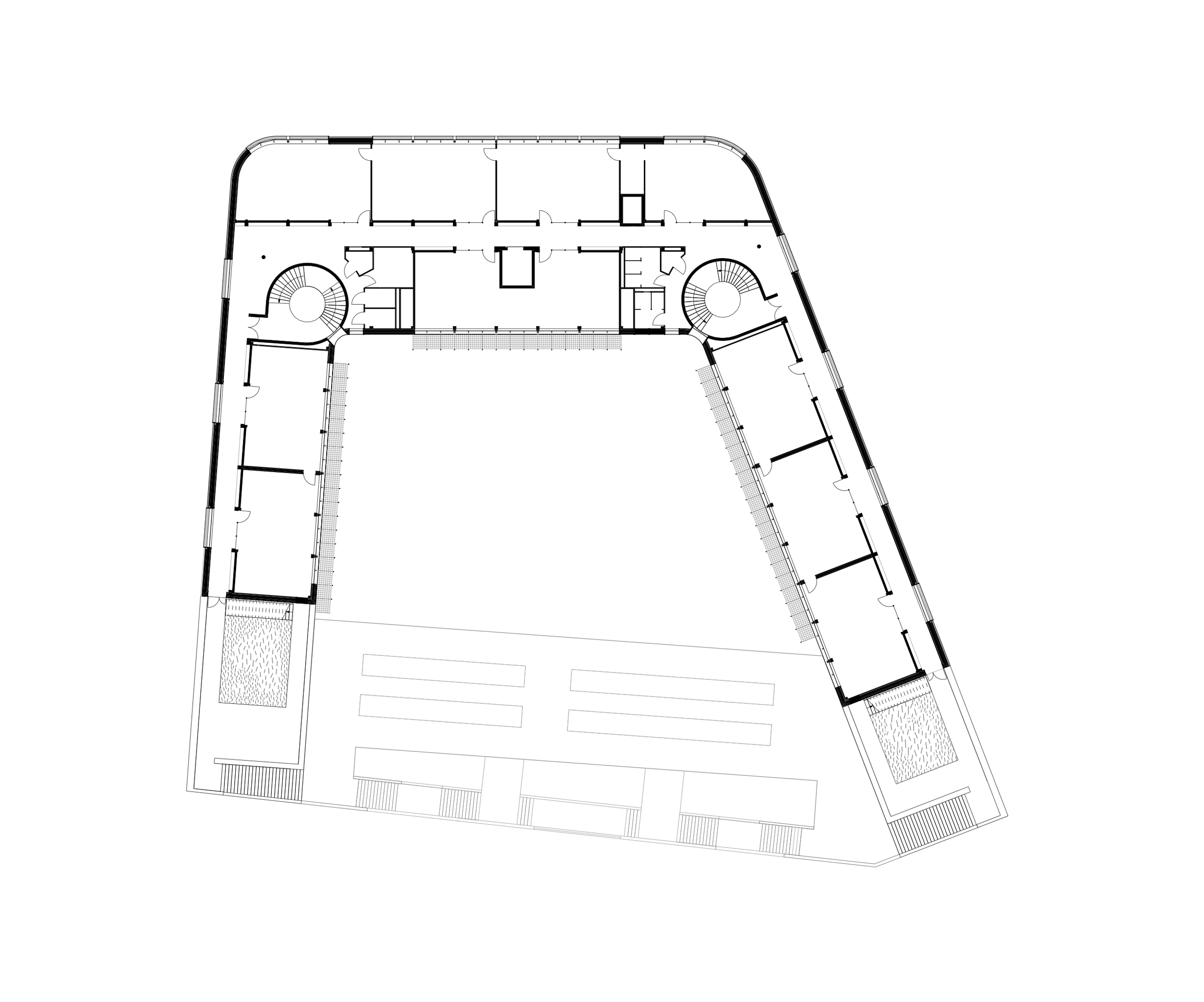
Plan R+1
-

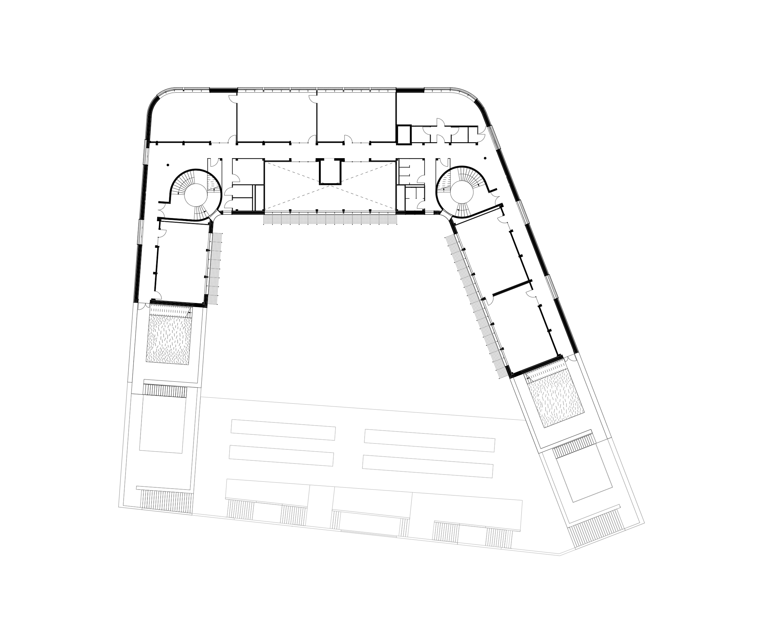
Plan R+2
-

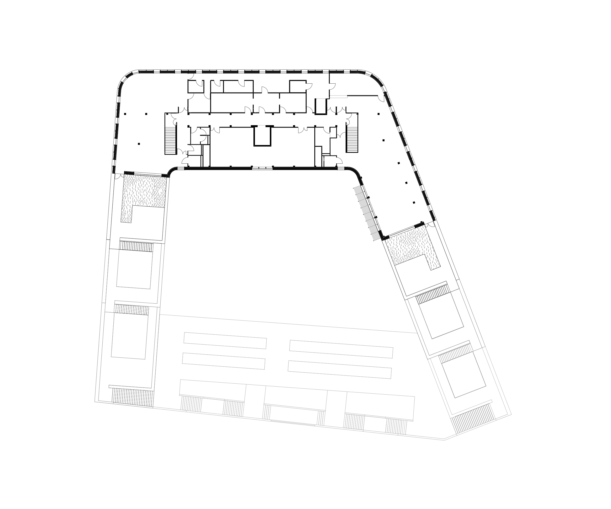
Plan R+3
-

Plan R+4
-

Plan toiture
-

Coupe transversale
-

Coupe longitudinale
-

Façade sud
-

Façade est
-

Façade nord
-

Axonométrie détail
Description du projet
Dans un contexte urbain dense et hétérogène, l’école adopte une forme claire, à la fois monumentale et familière. Implanté en U sur les limites de la parcelle, le bâtiment s’enroule autour de la cour comme une enceinte protectrice, entrelaçant architecture et paysage. Sa silhouette en gradins orientée au sud libère des terrasses aménagées en jardins suspendus qui offrent des panoramas sur la ville. L’organisation verticale devient prétexte à des parcours variés. Côté ville, la terre cuite dialogue avec le patrimoine francilien ; côté cour, les façades en bois sont augmentées d’une structure métallique servant à la fois de brise-soleil et de support à la végétation.
Caractéristiques
- Adresse1 allée Agnès Varda, Colombes, Hauts-de-Seine
- Dates2022-2025
- Programme25 classes, restaurant scolaire
- Surface5 180 m2
- Budget20 M€
- RéglementationRE 2020 niveau 2028 – Cep – 30 %
- Émissions744 kgCO2eq/m2
- Consommation58,8 kWh/m2/an
- LabelsBâtiment durable francilien Or , E3C2
- ParticularitésStructure poteaux-poutres bois, planchers connectés béton-bois, isolation biosourcée, géothermie sur sondes, ventilation double flux avec sonde CO2, briques de terre compressée, toiture-terrasse végétalisée
- Parutions
Acteurs
- Maîtrise d’ouvrageÉco.urbain, pour la Ville de Colombes
- Maîtrise d’œuvreTectoniques (architecte), Altitude 35 (paysagiste), Tectoniques Ingénieurs (économiste, fluides, structure bois, structure béton), eEgenie (QEB), Biodiversita (écologue), Gamba (acousticien), PK (cuisiniste), Ivoire (VRD), SPK (SSI)
- EntreprisesMaître Cube (entreprise générale, mandataire)
- PhotographieMaxime Verret







































