École élémentaire Hubert Reeves à Champagnole
-



-


Filiation: façade bataillée du Haut-Jura.
-



“Donner plus de ressemblance afin d’obtenir plus de différence.” Robert Bresson, Notes sur le cinématographe, Gallimard, 1975.
-

Plan de masse
N -

Axonométrie
-

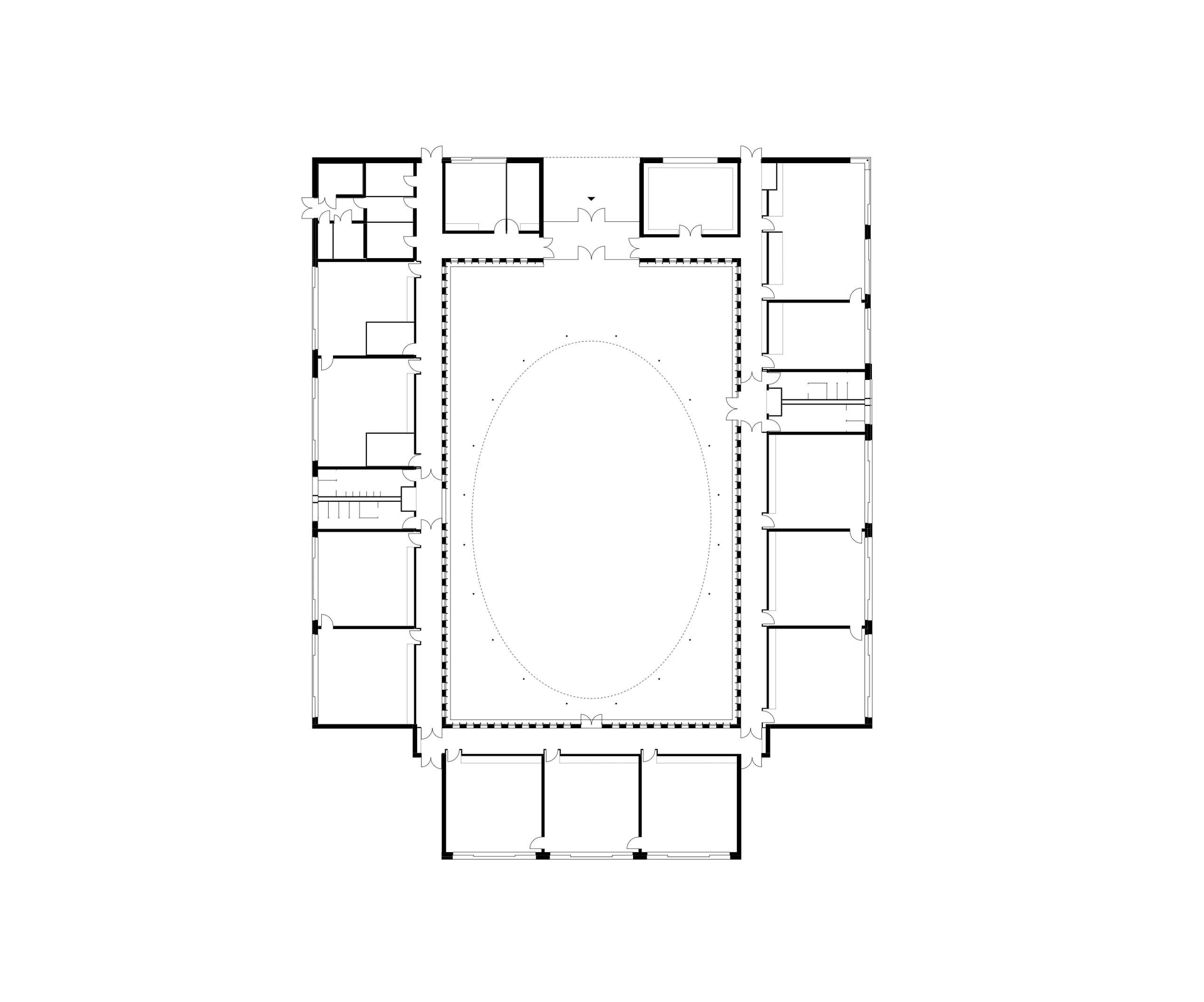
Plan RDC
-

Coupe transversale
-

Coupe longitudinale
-

Façade sud
-

Façade ouest
-

Façade nord
-

Façade est
-

Axonométrie structure
Description du projet
Installée dans un contexte périurbain ordinaire, l’école est organisée autour d’une cour caractérisée par la géométrie elliptique de la toiture en impluvium. Paradoxalement, cette figure introvertie révèle les reliefs environnants et projette vers le paysage. Les salles de classe, toutes identiques, profitent de large baies coulissantes qui les rendent toutes différentes dans leur rapport à l’environnement immédiat. L’enveloppe protectrice extérieure en zinc laisse place à l’expression de l’ossature bois à l’intérieur. La structure en bois du Jura valorise une ressource locale.
Caractéristiques
- Adresse22 rue de la Liberté, Champagnole, Jura
- Dates2014-2018
- Programme8 classes, 2 classes spécialisées, 2 salles périscolaires, bibiliothèque
- Surface1 400 m2
- Budget2,4 M€
- RéglementationRT 2012 – 50 %
- Consommation60 kWh/m2/an
- ParticularitésBois du Jura
- Distinctions2019 Prix national de la construction bois
Acteurs
- Maitrise d’ouvrageCommunauté de communes Champagnole Nozeroy Jura
- Maitrise d’œuvreTectoniques (architecte, mandataire), Tectoniques Ingénieurs (économiste, fluides), Perrin & associés (structure bois), Étamine (QEB)
- PhotographieJérôme Ricolleau
























