Actualités

Mai 2025

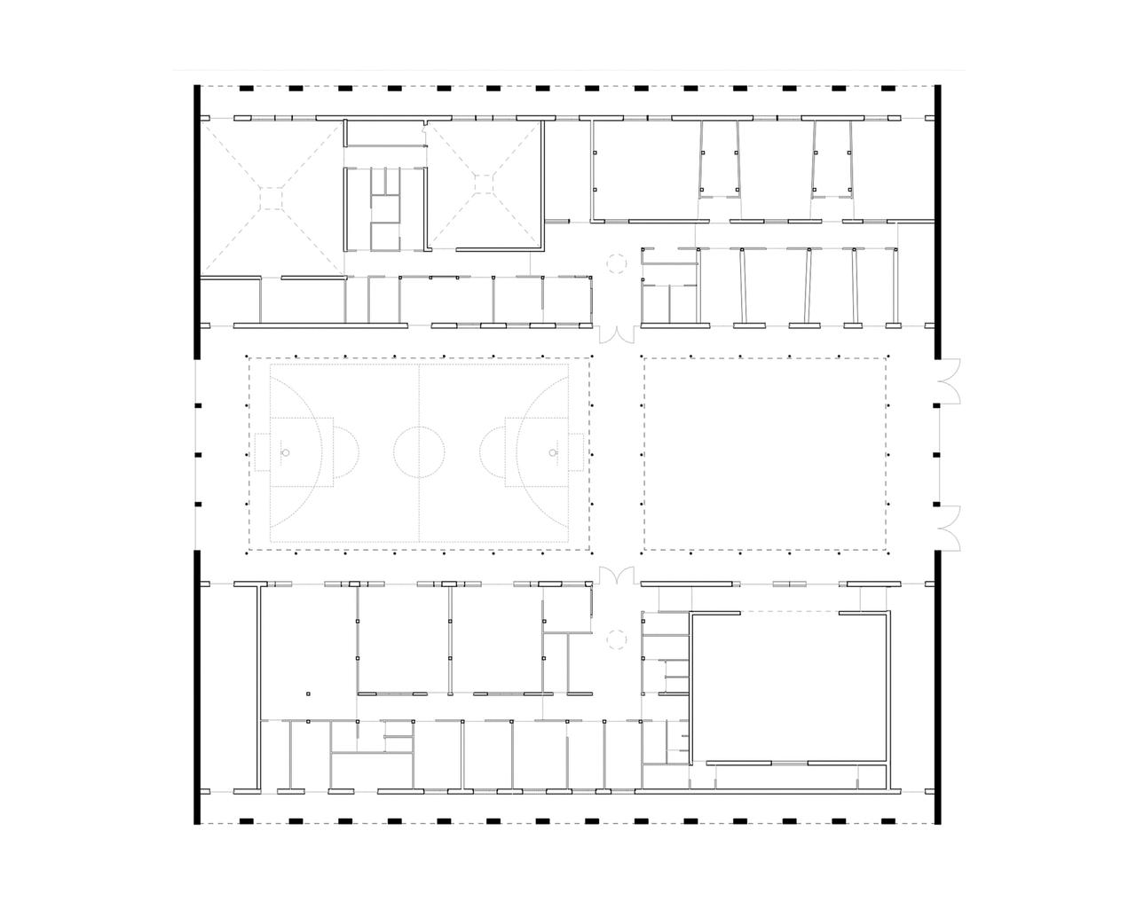
A Lyon Confluence, nous sommes lauréats du lot E4 Nord avec nos confrères Lipsky+Rollet et Vinci Immobilier. Le projet rassemble un gymnase omnisport, trois immeubles mixtes (bureaux, logements), une résidence étudiante et des commerces autour d’un jardin en pleine terre.

Avr. 2025

À Vaison-la-Romaine, nous construisons un pôle culturel composé d'une école de musique, de danse, d'une salle de spectacle et d'un centre de loisirs. Le projet délimite un périmètre en pierre massive à l'intérieur duquel des volumes en bois sont agencés autour de patios.

Mars 2025

A Saint-Etienne, la transformation de l'ancien IGH Loubet se poursuit avec nos confrères de l'agence Vigier. Le volume en attique est achevé, les 960 fenêtres de la tour sont posées et le montage de l'escalier de secours est en cours. Photos: Vladimir de Mollerat du Jeu.

Janv. 2025

À Lyon 8ème, l'agence visite le chantier du groupe scolaire Kennedy. Le bâtiment, en L sur la rue contient sa cour. Il est construit en bois selon une structure mixte poteaux poutres et CLT, isolé en paille et propose des façades en pierre de Hauteville et enduit chaux.

Déc. 2024

À Colombes, le gros œuvre du groupe scolaire Dominique Frelaut est bientôt terminé. Ce projet entrelace architecture et paysage de manière indissociable à travers une forme en gradins traités en jardins suspendus sur quatre étage. Nouvelles images de Maxime Verret.

Nov. 2024

À Bonneville, la restructuration lourde du groupe scolaire du Bouchet, typique des années 60, est en cours. L'intervention consiste à curer et désamianter l'existant, renforcer la structure béton initiale, étendre et surélever d'un à deux niveaux et reconstruire deux préaux.

Sélection de projets

1/6

Restructuration du collège Maryse Bastié à Dole, Jura, 2024

1/6

116 logements à Vénissieux, Rhône, 2024

1/6

Groupes scolaires Jacqueline Auriol et Jean Jaurès au Bourget, Seine-Saint-Denis, 2023

1/6

Collège du Ban à Vagney, Vosges, 2022

1/6

Médiathèque et groupe scolaire Claudie Haigneré à Les Pennes-Mirabeau, Bouches-du-Rhône, 2022

1/6

Poste source à Villeurbanne, Rhône, 2020

1/6

Halle de marché à Marcy-l'Étoile, Rhône, 2019

1/6

École élémentaire Hubert Reeves à Champagnole, Jura, 2019

1/6

Espace nordique à Bessans, Savoie, 2009

1/6

Maison du Parc naturel régional du Haut-Jura à Lajoux, Jura, 2004

À propos

Associés

Charley Damont, ingénieur structure
Lucas Jollivet, architecte
Clément Lebourgeois, architecte
Mayeul Mounaud, économiste
Robert Weitz, architecte

Administration

Mélanie Janaud, assistante administrative
Isabelle Muzyczka, office manageuse
Cécile Zurano, directrice administrative et financière

Architectes

Solenn Augé, Loris Bied, Thomas Blot, Willy Caraman, Violaine Charlot, Léo-Paul Chorel, Rémi Davallet Pin, Thomas Delaire, Pablo Giovanni, Étienne Girard, Justine Goussard, Vanille Josephine, Alexandre Jozan, Manon Jusselin, Marie Le Pechon, Lucas Lebel, Anne Levallois, Lisa Louison, Claire Mallet, Elise Marcel, Tiziana Minchella, Lucie Petit, Amélie Pontet, Florent Quintard, Lucie Rossignol, Raphaëlle Ruiz, Nicolas Serreli, Michelle Trarbach, Laure Villedieu.

Ingénieurs

Structure: Elsa Alaux, Aymeric Broyet, Romain Guinard, Simon Hanisch, Étienne Louis, Paul-Émile Rinaudo, Marianne Schroeder, Nibras Zara. Économiste: Pablo Cancade, Marie-Orianna Claerr, Pierre Da Cruz, Patrice Feuga. Fluides: Olivier Balmain, Gauthier Capet, Julien Herbo, Clément Risse, Philippe Talet. QEB: Pierrick Durand-Glouchkoff, Clémence Magnière, Hélène Thieblemont. TCE: Benjamin Burq, Rémi Morin.

Distinctions

2024
Prix des écoles, Prix régional de la construction bois, Fibois Île-de-France (Groupes scolaires Jacqueline Auriol et Jean Jaurès au Bourget, Seine-Saint-Denis)

2023
Label architecture contemporaine remarquable du ministère de la Culture (Maison du parc naturel régional du Haut-Jura à Lajoux, Jura)

2019
Prix national de la construction bois (Groupe scolaire Hubert Reeves à Champagnole, Jura)

2018
Prix national du logement de l’Académie d’architecture

2015
Wan award, catégorie wood architecture (Gymnase Hacine Cherifi à Rillieux-la-Pape, Rhône)

Contact

+33 4 78 30 06 56
tectoniques@tectoniques.com
Instagram
Linkedin

Lyon

130 bis rue Baraban
69003 Lyon

Paris

120 avenue Gambetta
75020 Paris

Bordeaux

34 rue Jean Burguet
33000 Bordeaux

Fondée en 1991, Tectoniques réunit architectes et ingénieurs autour d’une pratique collaborative du projet. Nous intervenons sur tous types de programmes et d’échelles, en construction neuve comme sur le patrimoine existant selon une approche pragmatique et contextuelle. L’économie de moyens, l’efficacité constructive et l’évolutivité des ouvrages fondent une démarche engagée dans la transition environnementale. La forme architecturale est envisagée comme un résultat à la fois intelligible et poétique.

Mentions légales et crédits: T.A.I, SARL au capital de 141 000 €. RCS: 920344488, Lyon. TVA: FR62920344488. Directeur de la publication: Lucas Jollivet. En tant qu’architecte, T.A.I. est inscrit à l’ordre des architectes de la région Auvergne-Rhône-Alpes et obéit au code de déontologie des architectes. Titres professionnels octroyés en France. Photographies: Maxime Verret (Dole, Vagney, Vénissieux) et Luc Bohro (Le Bourget). Conception éditoriale: Olivier Talbot. Conception graphique: Building Paris. Code: F451. Hébergement: Vercel, 440 N Barranca Ave #4133, Covina, CA 91723, USA.