- Données pour les candidatures
Projet
Localité
Région
Programme
Dates
Statut
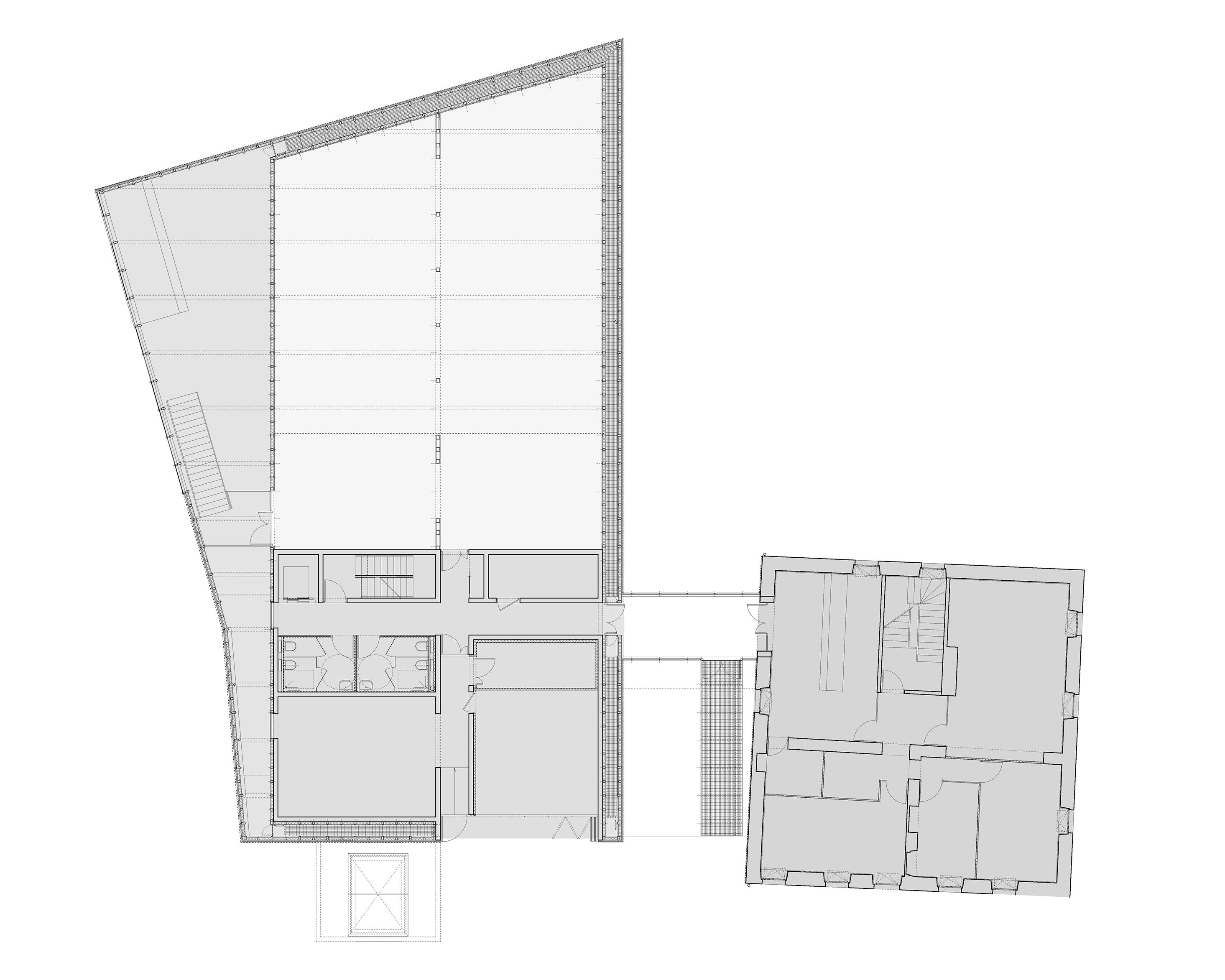
Centre de maintenance des tramways
Lyon
Auvergne-Rhône-Alpes
Infrastructure
2023-2029
En études
- NomCentre de maintenance des tramways
- Adresserue Challemel Lacour, Lyon, Rhône
- Maîtrise d'ouvrageSytral
- Date de livraisonDécembre 2029
- Durée des études42 mois
- Durée du chantier33 mois
- ProgrammeZone de remisage pour 44 rames extensible à 66 rames, zone de maintenance avec station-service de lavage et de sablage, zone d’exploitation (bureaux, vestiaires, espaces communs), zone de stationnement
- Surface22 840 m2
- Budget70,6 M€
- Honoraires archi1,5 M€
- Honoraires totaux9,4 M€
- RéglementationRE 2020 niveau 2025 – Cep – 20 %
- Émissions704 kgCO2eq/m2
- Consommation182 kWh/m2/an
- ParticularitésRéseau de chaleur urbain, panneaux photovoltaïques, récupération des eaux pluviales, structure bois, pisé préfabriqué, béton bas carbone
- Descriptif courtImplanté sur le site des anciennes usines Fagor-Brandt, le centre de maintenance…
- ÉquipeBLP & Associés (architecte, mandataire), Tectoniques (architecte associé), LS2 Landscapes (paysagiste), Ingérop (économiste, électricité, fluides, infrastructure, structure bois, structure béton, VRD), Tectoniques Ingénieurs (structure bois, structure béton), Actierra (QEB), Convergo SARL (ergonome), Antea Group (dépollution), 8'18" (concepteur lumière)
30 logements, bureaux et gymnase
Lyon
Auvergne-Rhône-Alpes
HabitatSportTertiaire
2023-2029
En études
- Nom30 logements, bureaux et gymnase
- Adresse140 Cours Charlemagne, Lyon, Rhône
- Maîtrise d'ouvrageVinci Immobilier
- Date de livraisonMars 2029
- Durée des études44 mois
- Durée du chantier24 mois
- Programme30 logements, 4 plateaux tertiaires, gymnase omnisports, structure d'escalade
- Surface5 440 m2
- Budget11,2 M€
- Honoraires archi746 700 €
- Honoraires totaux1,2 M€
- RéglementationRE 2020 niveau 2025 – Cep – 30 %
- Émissions52 kgCO2eq/m2
- Consommation74,8 kWh/m2/an
- CertificationsBâtiment biosourcé niveau 3
- DétailGymnase : surface 2350 m2, budget 5,7 M€, honoraires archis 374 952 €, honoraires totaux 664 741 €, conso 43,4 kWh/an/m2, émissions 88 kgCO2eq/m2
- ParticularitésRécupération des eaux grises des logements pour la centrale de traitement d’air adiabatique du gymnase et les toilettes des bureaux
- Descriptif courtL’îlot E4 Nord est situé entre les voies ferrées et le cours Charlemagne, ce qui…
- ÉquipeTectoniques (architecte), Lipsky+Rollet (architecte), Tectoniques Ingénieurs (structure bois, structure béton), Katene (fluides), Milieu Studio (QEB), VPEAS (économiste), Studis (VRD), Phytorestore (paysagiste)
Ehpad
Auxerre
Bourgogne-Franche-Comté
Santé
2023-2028
En chantier
- NomEhpad
- Adresse49 rue Louis Braille, Auxerre, Yonne
- Maîtrise d'ouvrageMaison départementale de retraite de l’Yonne, Crescendo (AMO)
- Date de livraisonNovembre 2028
- Durée des études25 mois
- Durée du chantier37 mois
- Programme321 lits en 6 unités, unité Alzheimer, unité d’hébergement renforcé (UHR), unité de soins de longue durée (USLD), pôle d’activités et de soins adaptés (PASA)
- Surface20 260 m2
- Budget40,3 M€
- Honoraires archi2,5 M€
- Honoraires totaux4,6 M€
- RéglementationRT 2012 – 30 %
- Émissions963 kgCO2eq/m2
- Consommation120 kWh/m2/an
- CertificationsE3C1
- ParticularitésÉclairage naturel des salles de bain, façades légères en bois préfabriquées, toiture légère avec isolation biosourcée, ventilation double flux avec modules adiabatiques, ventilation nocturne avec brasseurs d’air
- Descriptif courtInstallé en partie haute du terrain, le nouveau bâtiment s’adosse à la frange bo…
- ÉquipeTectoniques (architecte, mandataire), LJN (paysagiste), Tectoniques Ingénieurs (économiste, électricité, fluides, structure bois, structure béton), Zefco (QEB), Gamba (acousticien), Studis (cuisiniste, VRD, coordinateur SSI), Batiss (SSI)
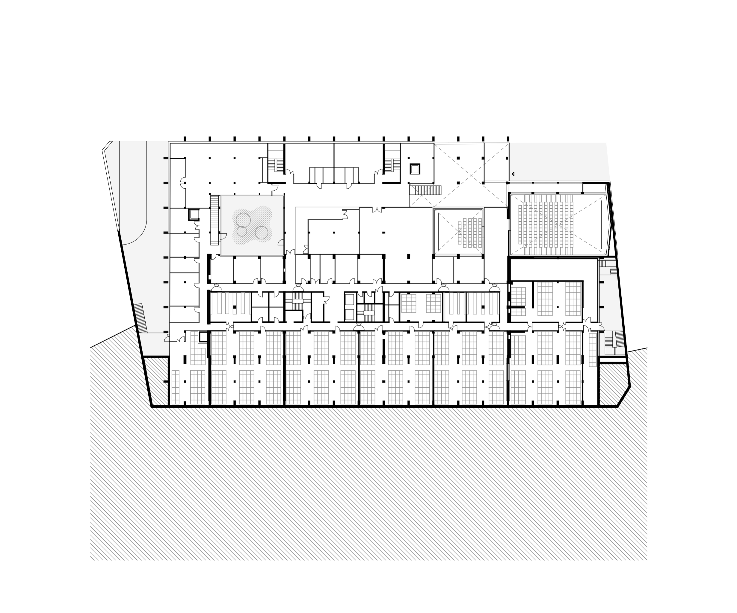
Restructuration et extension d’une auberge de montagne
Véranne
Auvergne-Rhône-Alpes
Hôtellerie
2021-2028
En chantier
- NomRestructuration et extension d’une auberge de montagne
- Adresse6970 route de l'Œillon, Véranne, Loire
- Maîtrise d'ouvragePrivée
- Date de livraisonMars 2028
- Durée des études60 mois
- Durée du chantier24 mois
- Programmerestaurant, auberge de 40 lits, salle polyvalente
- Surface890 m2
- Budget1,8 M€
- Honoraires archi111 600 €
- Honoraires totaux170 000 €
- ParticularitésChaudière bois, site naturel classé, autonomie en eau
- Descriptif courtSitué à 1235 mètres d’altitude, le col de l’Œillon est un site classé remarquabl…
- ÉquipeTectoniques (architecte, mandataire), Tectoniques Ingénieurs (économiste, fluides, structure bois, structure béton)
Rénovation et extension du groupe scolaire des Mogets
Loisin
Auvergne-Rhône-Alpes
Enseignement
2023-2027
En études
- NomRénovation et extension du groupe scolaire des Mogets
- Adresse9 impasse de la prairie, Loisin, Haute-Savoie
- Maîtrise d'ouvrageCommune de Loisin
- Date de livraisonDécembre 2027
- Durée des études37 mois
- Durée du chantier17 mois
- Programme7 classes, espace périscolaire, cuisine, restaurant scolaire
- Surface2 875 m2
- Budget3,7 M€
- Honoraires archi329 861,68 €
- Honoraires totaux661 645,35 €
- RéglementationRE 2020 niveau 2028 – Cep – 20 %
- Consommation72,5 kWh/m2/an
- CertificationsBâtiment biosourcé niveau 3
- ParticularitésPompe à chaleur, panneaux photovoltaïques, chaudière à granulés, isolation en laine de bois
- ÉquipeTectoniques (architecte, mandataire), Tectoniques Ingénieurs (économiste, électricité, fluides, QEB, structure bois, structure béton), LJN (paysagiste), Gamba (acousticien), Studis (cuisiniste, VRD, SSI)
48 logements, résidence étudiante et groupe scolaire Frida Kahlo
Bordeaux
Nouvelle-Aquitaine
EnseignementHabitatSport
2021-2027
En chantier
- Nom48 logements, résidence étudiante et groupe scolaire Frida Kahlo
- Adresse26 rue Célestin Freinet, Bordeaux, Gironde
- Maîtrise d'ouvrageBouygues Immobilier
- Date de livraisonDécembre 2027
- Durée des études45 mois
- Durée du chantier29 mois
- Programme48 logements, 182 chambres étudiantes, groupe scolaire de 20 classes, restaurant, pôle sportif
- Surface12 840 m2
- Budget25 M€
- Honoraires archi896 840,09 €
- Honoraires totaux1,4 M€
- RéglementationRE 2020 niveau 2025 – Cep – 30 %
- CertificationsNF HQE Habitat 9*, Bâtiment frugal bordelais 2 feuilles
- ParticularitésPanneaux photovoltaïques, isolation biosourcée, béton bas carbone, toiture à rétention, structure bois et façade à ossature bois pour l’équipement
- Descriptif courtL’îlot 8.10 s’inscrit dans le quartier Armagnac Sud à Bordeaux Euratlantique. Il…
- ÉquipeTectoniques (architecte), Cobe (OPC, MOEX logements), Land'act (paysagiste), Premières Bases (structure bois), Egis (TCE phases conception), Passivea (QEB), Oteis (fluides phase réalisation), Aïda (acousticien), Cuisinorme (cuisiniste)
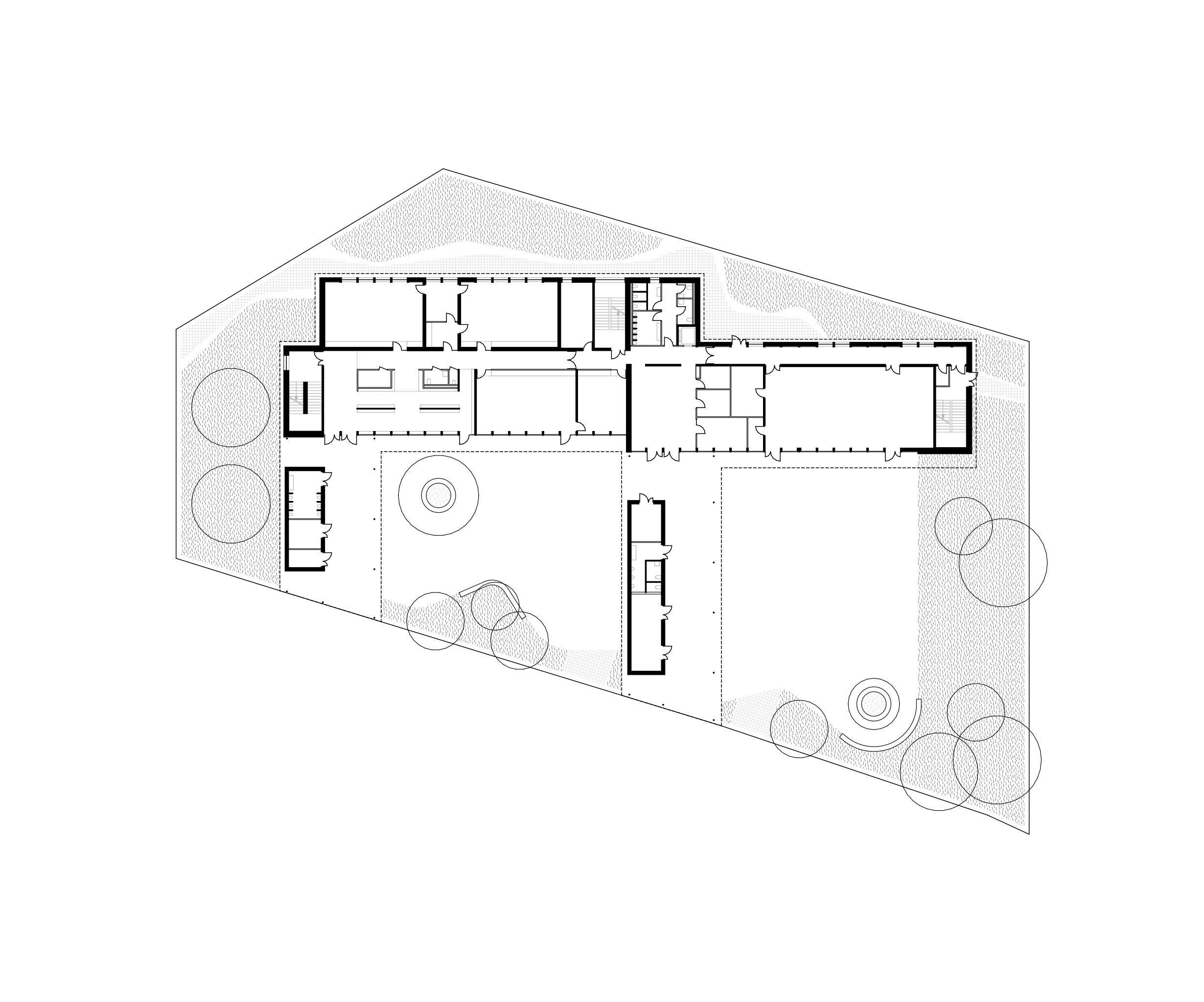
Pôle culture, enfance et jeunesse
Saint-Valérien
Bourgogne-Franche-Comté
Culture
2022-2027
En études
- NomPôle culture, enfance et jeunesse
- Adresse3 route de Coleuvrat, Saint-Valérien, Yonne
- Maîtrise d'ouvrageCommunauté de communes du Gâtinais en Bourgogne
- Date de livraisonNovembre 2027
- Durée des études44 mois
- Durée du chantier17 mois
- Programmeécole de musique, école de danse, restaurant, salle polyvalente, centre de loisirs, relais petite enfance
- Surface2 457 m2
- Budget7,3 M€
- Honoraires archi535 853,72 €
- Honoraires totaux988 456,13 €
- RéglementationRE 2020 niveau 2025 – Cep – 30 %
- Consommation40 kWh/m2/an
- CertificationsBâtiment biosourcé niveau 3
- ParticularitésGéothermie, panneaux photovoltaïques, isolation en laine de bois, brique (terre crue, terre cuite)
- Descriptif courtInstallé en lisière du village dans un paysage de vaste plaine, l’équipement reg…
- ÉquipeTectoniques (architecte, mandataire), Tectoniques Ingénieurs (économiste, fluides, QEB, structure bois, structure béton, OPC), LJN (paysagiste), Gamba (acousticien), Studis (VRD)
Réhabilitation d’un conservatoire intercommunal
Annemasse
Auvergne-Rhône-Alpes
CultureEnseignement
2024-2027
En études
- NomRéhabilitation d’un conservatoire intercommunal
- Adresse2 rue des Savoie, Annemasse, Haute-Savoie
- Maîtrise d'ouvrageAnnemasse Agglo, Ville d’Annemasse
- Date de livraisonOctobre 2027
- Durée des études22 mois
- Durée du chantier16 mois
- Programmeréhabilitation et extension du conservatoire, réaménagement de l’auditorium et du diocèse
- Surface2 441 m2
- Budget4,4 M€
- Honoraires archi408 963 €
- Honoraires totaux768 358 €
- RéglementationRT Existant – 70 %
- Émissions891 kgCO2eq/m2
- Consommation33,4 kWh/m2/an
- CertificationsBâtiment biosourcé niveau 2
- ÉquipeTectoniques (architecte, mandataire), Tectoniques Ingénieurs (économiste, électricité, fluides, QEB, structure bois, structure béton), Architecture et Technique (Scénographie), Venathec (acousticien), Namixis (SSI)
Restructuration et reconstruction du groupe scolaire Pompidou-Mourguet
Lyon
Auvergne-Rhône-Alpes
Enseignement
2023-2027
En chantier
- NomRestructuration et reconstruction du groupe scolaire Pompidou-Mourguet
- Adresse16 rue des Petites Soeurs, Lyon, Rhône
- Maîtrise d'ouvrageVille de Lyon
- Date de livraisonSeptembre 2027
- Durée des études38 mois
- Durée du chantier18 mois
- ProgrammeRénovation de 6 salles de classe, pôle médical, bibliothèque, construction de 8 salles de classe, salles d’activités, salle polyvalente, gymnase, 2 réfectoires
- Surface4 182 m2
- Budget8,1 M€
- Honoraires archi621 956,39 €
- Honoraires totaux1,1 M€
- RéglementationRE 2020 niveau 2028 – Cep – 20 %
- Émissions726 kgCO2eq/m2
- Consommation60,7 kWh/m2/an
- ParticularitésPlanchers mixtes bois-béton, façade en blocs de béton à maçonner, panneaux photovoltaïques, surventilation nocturne naturelle
- Descriptif courtLa nouvelle école élémentaire Pompidou est conçue comme un élément complémentair…
- ÉquipeTectoniques (architecte, mandataire), Tectoniques Ingénieurs (QEB, structure bois, structure béton), Alto (électricité, fluides), Studis (VRD), MRP (paysagiste), Pimant (cuisiniste)
Groupe scolaire Louis Pergaud
Levier
Bourgogne-Franche-Comté
Enseignement
2023-2027
En chantier
- NomGroupe scolaire Louis Pergaud
- Adresse2 rue de Salins, Levier, Doubs
- Maîtrise d'ouvrageCCA800
- Date de livraisonJuin 2027
- Durée des études22 mois
- Durée du chantier21 mois
- Programme3 classes maternelles, 6 classes élémentaires, salle de motricité, bibliothèque-centre documentaire, local à skis
- Surface1 541 m2
- Budget4,3 M€
- Honoraires archi401 222 €
- Honoraires totaux611 292 €
- RéglementationRE 2020 niveau 2031 – Cep – 30 %
- Émissions500 kgCO2eq/m2
- Consommation61,9 kWh/m2/an
- ParticularitésChape sèche, chaudière bois, puits canadien, bois scolyté local, ventilation nocturne, mur en torchis
- Descriptif courtSituée au centre du village, dans un territoire forestier, l’école s’implante su…
- ÉquipeTectoniques (architecte, mandataire), Tectoniques Ingénieurs (électricité, fluides, QEB, structure bois, structure béton), MRP (paysagiste), Gamba (acousticien), BeTerre (Bureau d'étude terre)
Groupe scolaire
Vienne
Auvergne-Rhône-Alpes
Enseignement
2023-2027
En chantier
- NomGroupe scolaire
- Adressechemin de Durandal, Vienne, Isère
- Maîtrise d'ouvrageVille de Vienne
- Date de livraisonJuin 2027
- Durée des études34 mois
- Durée du chantier19 mois
- Programme4 classes maternelles, 6 classes élémentaires, restaurant scolaire, accueil périscolaire, salle polyvalente
- Surface2 590 m2
- Budget7,5 M€
- Honoraires archi600 362,58 €
- Honoraires totaux974 672,11 €
- RéglementationRE 2020 niveau 2028 – Cep – 30 %
- Émissions756 kgCO2eq/m2
- Consommation64,1 kWh/m2/an
- CertificationsBâtiment biosourcé niveau 3
- ParticularitésGéothermie sur sondes, isolation en laine de bois, 200 m² de panneaux photovoltaïques
- Descriptif courtSur les hauteurs de Vienne, le projet se déploie sous une vaste toiture qui s’en…
- ÉquipeTectoniques (architecte, mandataire), Tectoniques Ingénieurs (économiste, électricité, fluides, QEB, structure béton), Hédont Acoustique (acousticien), Studis (VRD, SSI), Marco Rossi (paysagiste)
Cité campus Assia Djebar
Vaulx-en-Velin
Auvergne-Rhône-Alpes
Enseignement
2021-2027
En chantier
- NomCité campus Assia Djebar
- Adresse4 rue Hô Chi Minh, Vaulx-en-Velin, Rhône
- Maîtrise d'ouvrageVille de Vaulx-en-Velin
- Date de livraisonFévrier 2027
- Durée des études41 mois
- Durée du chantier24 mois
- Programmeamphithéâtre, salles de classe, locaux administratifs
- Surface2 078 m2
- Budget8,4 M€
- Honoraires archi550 455,69 €
- Honoraires totaux963 329,30 €
- RéglementationRT 2012 – 40 %
- Émissions1 371 kgCO2eq/m2
- Consommation57 kWh/m2/an
- CertificationsE3C1, Bâtiment biosourcé niveau 3
- ParticularitésRésille de poutres croisées, bois des Alpes, béton bas carbone, panneaux photovoltaïques, ventilation naturelle
- Descriptif courtL’équipement s’implante dans le centre-ville de Vaulx-en-Velin, dont la transfor…
- ÉquipeTectoniques (architecte, mandataire), Itinéraire bis (paysagiste), Tectoniques Ingénieurs (économiste, électricité, fluides, structure béton, SSI), Arborescence (structure bois), eEgenie (QEB), Link (acousticien)
Réhabilitation de l’ancien IGH Émile Loubet
Saint-Étienne
Auvergne-Rhône-Alpes
CultureHabitatTertiaire
2018-2026
En chantier
- NomRéhabilitation de l’ancien IGH Émile Loubet
- Adresse3 place Sainte Barbe, Saint-Étienne, Loire
- Maîtrise d'ouvrageEPASE, Ville de Saint-Étienne, Habitat et Métropole
- Date de livraisonDécembre 2026
- Durée des études55 mois
- Durée du chantier47 mois
- Programmepôle patrimonial - cinémathèque (POPA), Direction police et sécurité civile municipales (DPSCM), siège social d’Habitat et Métropole, résidence étudiante de 51 logements, archives municipales, parking silo
- Surface22 300 m2
- Budget31,1 M€
- Honoraires archi1,2 M€
- Honoraires totaux4,3 M€
- RéglementationRT Existant – 40 %
- Consommation53,8 kWh/m2/an
- ParticularitésIsolation intérieure en fibre de bois, rénovation des pierres de façade, chaudière à cogénération au gaz, ventilation double flux adiabatique, récupération des calories sur les eaux usées
- Descriptif courtLe projet consiste à transformer un ensemble déconsidéré emblématique de l’archi…
- ÉquipeTectoniques (architecte, mandataire), Dominique Vigier (architecte associé), Tectoniques Ingénieurs (économiste, électricité, fluides, QEB, structure béton), Gamba (acousticien), Numéro 111 (Design d'intérieur), Namixis (SSI)
Centre équestre
Gennevilliers
Île-de-France
Sport
2019-2026
En chantier
- NomCentre équestre
- Adresse60 rue du Moulin de Cage, Gennevilliers, Hauts-de-Seine
- Maîtrise d'ouvrageVille de Gennevilliers
- Date de livraisonDécembre 2026
- Durée des études39 mois
- Durée du chantier51 mois
- Programmeclub house, écuries, manège, carrière, paddock, stationnements, abords
- Surface1 051 m2
- Budget4,6 M€
- Honoraires archi357 964 €
- Honoraires totaux575 183 €
- RéglementationRT 2012
- Consommation61 kWh/m2/an
- ParticularitésCharpente et bardage bois, isolation biosourcée (laine de bois), toile tendue
- Descriptif courtSitué en ville, le centre équestre prend place sur une parcelle réduite, entre u…
- ÉquipeTectoniques (architecte, mandataire), D+H (architecte associé), Tectoniques Ingénieurs (économiste, fluides, structure béton), Arborescence (structure bois), eEgenie (QEB), DBVIB (acousticien)
142 logements
Cognin
Auvergne-Rhône-Alpes
Habitat
2021-2026
Livré
- Nom142 logements
- Adresse13 rue des clarines, Cognin, Savoie
- Maîtrise d'ouvrageIcade
- Date de livraisonMars 2026
- Durée des études25 mois
- Durée du chantier26 mois
- Programme2 plots d’habitat intermédiaire, 4 plots d’habitat collectif
- Surface9 900 m2
- Budget16,5 M€
- Honoraires archi812 500 €
- Honoraires totaux1,6 M€
- RéglementationRE 2020 niveau 2025 – Cep – 20 %
- Émissions957 kgCO2eq/m2
- Consommation70 kWh/m2/an
- CertificationsBâtiment biosourcé niveau 1
- ParticularitésMurs à ossature bois préfabriqués en atelier avec isolant, menuiseries, bardage
- ÉquipeTectoniques (architecte, mandataire), Tectoniques Ingénieurs (économiste, électricité, fluides, structure bois), Loup Menigoz (architecte), ETBA (structure béton), Terre Eco (QEB), Marco Rossi (paysagiste), In Situ (acousticien)
Groupe scolaire Kennedy
Lyon
Auvergne-Rhône-Alpes
Enseignement
2021-2026
Livré
- NomGroupe scolaire Kennedy
- Adresse1 rue de la Concorde, Lyon, Rhône
- Maîtrise d'ouvrageVille de Lyon
- Date de livraisonFévrier 2026
- Durée des études28 mois
- Durée du chantier25 mois
- Programme17 classes, restaurant scolaire, bibliothèque
- Surface4 300 m2
- Budget11,6 M€
- Honoraires archi691 982 €
- Honoraires totaux1,4 M€
- RéglementationRE 2020 niveau 2028 – Cep – 30 %
- Émissions854 kgCO2eq/m2
- Consommation-3,9 kWh/m2/an
- CertificationsBâtiment biosourcé niveau 3, E4C2
- ParticularitésMurs ossature bois avec isolation paille, enduits à la chaux, soubassement en pierre de Hauteville, ventilation naturelle nocturne, brasseurs d’air, BSO, centrales de traitement d’air adiabatiques, 600 m² de panneaux photovoltaïques
- Descriptif courtL’école s’inscrit dans un îlot en recomposition au sein d’un contexte faubourien…
- ÉquipeTectoniques (architecte, mandataire), LJN (paysagiste), Tectoniques Ingénieurs (économiste, électricité, fluides, structure bois, structure béton), eEgenie (QEB), Gamba (acousticien), Studis (cuisiniste)
Pôle culturel
Vaison-la-Romaine
Provence-Alpes-Côte d'Azur
Culture
2022-2026
Livré
- NomPôle culturel
- Adresse145 rue Pierre de Coubertin, Vaison-la-Romaine, Vaucluse
- Maîtrise d'ouvrageCommunauté de communes Vaison-Ventoux, GNI+ (AMO)
- Date de livraisonJanvier 2026
- Durée des études29 mois
- Durée du chantier8 mois
- ProgrammeÉcole de musique, école de danse, salle de spectacle, centre de loisirs, city stade
- Surface1 500 m2
- Budget4,8 M€
- Honoraires archi400 076,26 €
- Honoraires totaux683 134,66 €
- RéglementationRE 2020 niveau 2028 – Cep – 30 %
- Émissions1 340 kgCO2eq/m2
- Consommation45 kWh/m2/an
- CertificationsBâtiment biosourcé niveau 3, E3C2
- ParticularitésPierre massive, structure poteaux-poutres bois, MOB avec isolation laine de bois, toiture courante panneaux CLT, bardage douglas, géothermie sur sondes, plancher chauffant et rafraîchissant, panneaux photovoltaïques, ventilation double flux
- Descriptif courtInstallé dans un lotissement, le projet délimite un carré de 55 mètres de côté m…
- Descriptif longLe projet prend place sur d’anciens terrains viticoles transformés en lotissemen…
- ÉquipeTectoniques (architecte, mandataire), LJN (paysagiste), Tectoniques Ingénieurs (économiste, fluides, QEB, structure bois, structure béton), Gamba (acousticien), Igbat&Co (CFO-CFA)
































Axonométrie détail façade patio et salle de spectacle

Axonométrie

Coupe transversale

Coupe transversale

Axonométrie détail façade sur rue, pergola et salle de danse

Façade est

Façade nord

Façade nord patio

Façade ouest

Façade sud patio

Axonométrie détail façade patio et salle de spectacle

Coupe transversale

Axonométrie détail façade sur rue, pergola et salle de danse

Façade sud

Axonométrie structure

Axonométrie

Axonométrie structure

Axonométrie structure

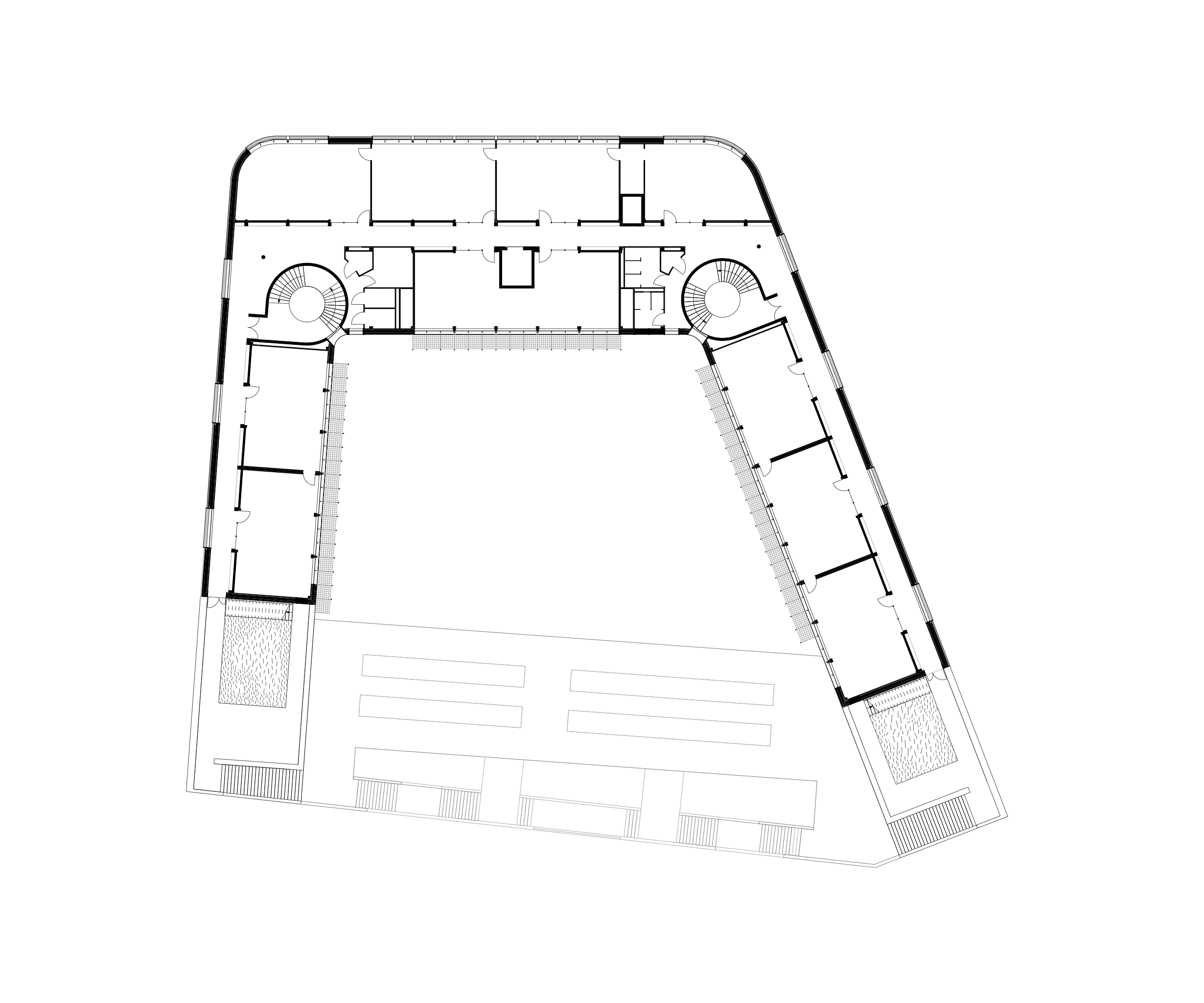
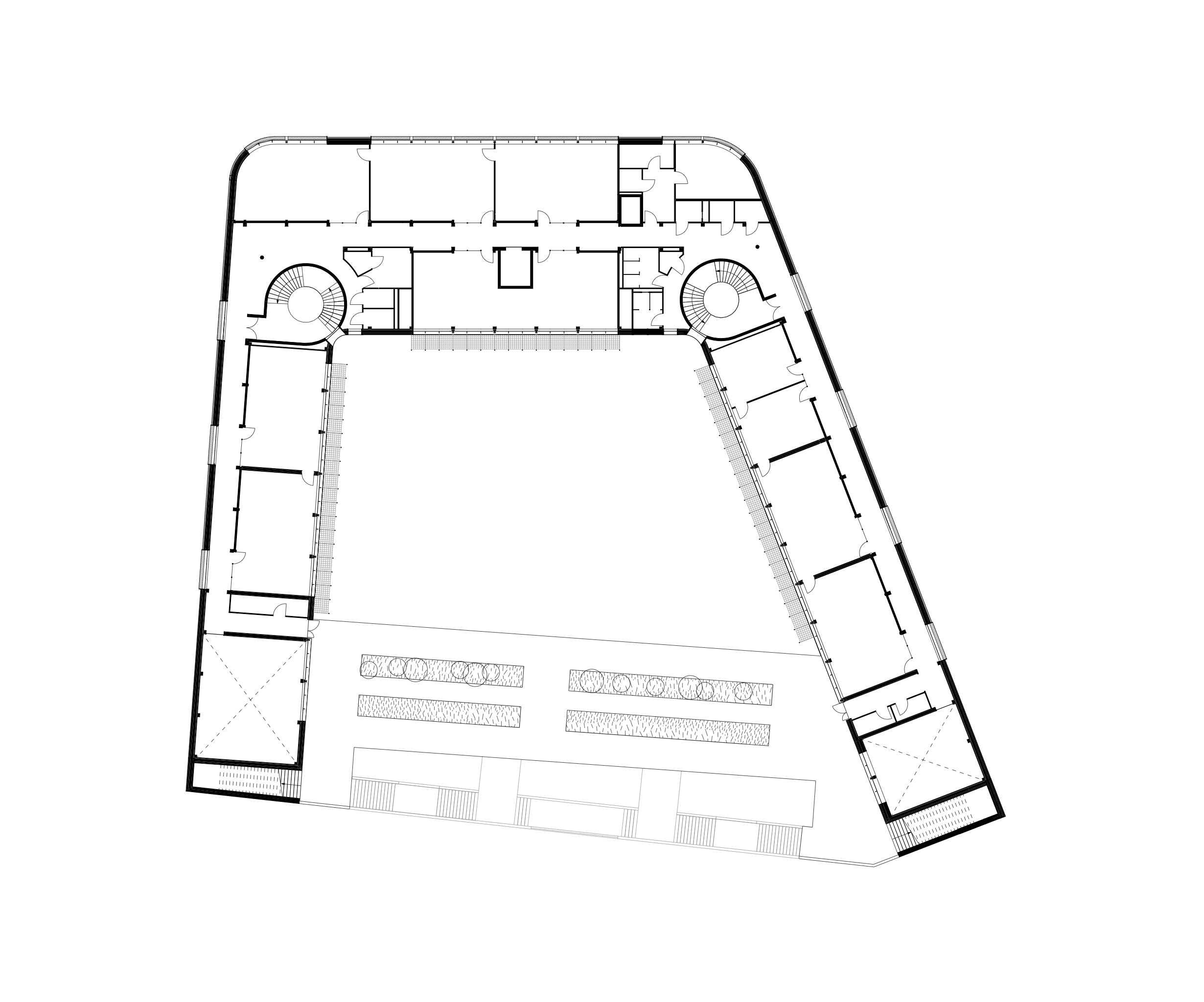
Plan RDC

Plan de masse
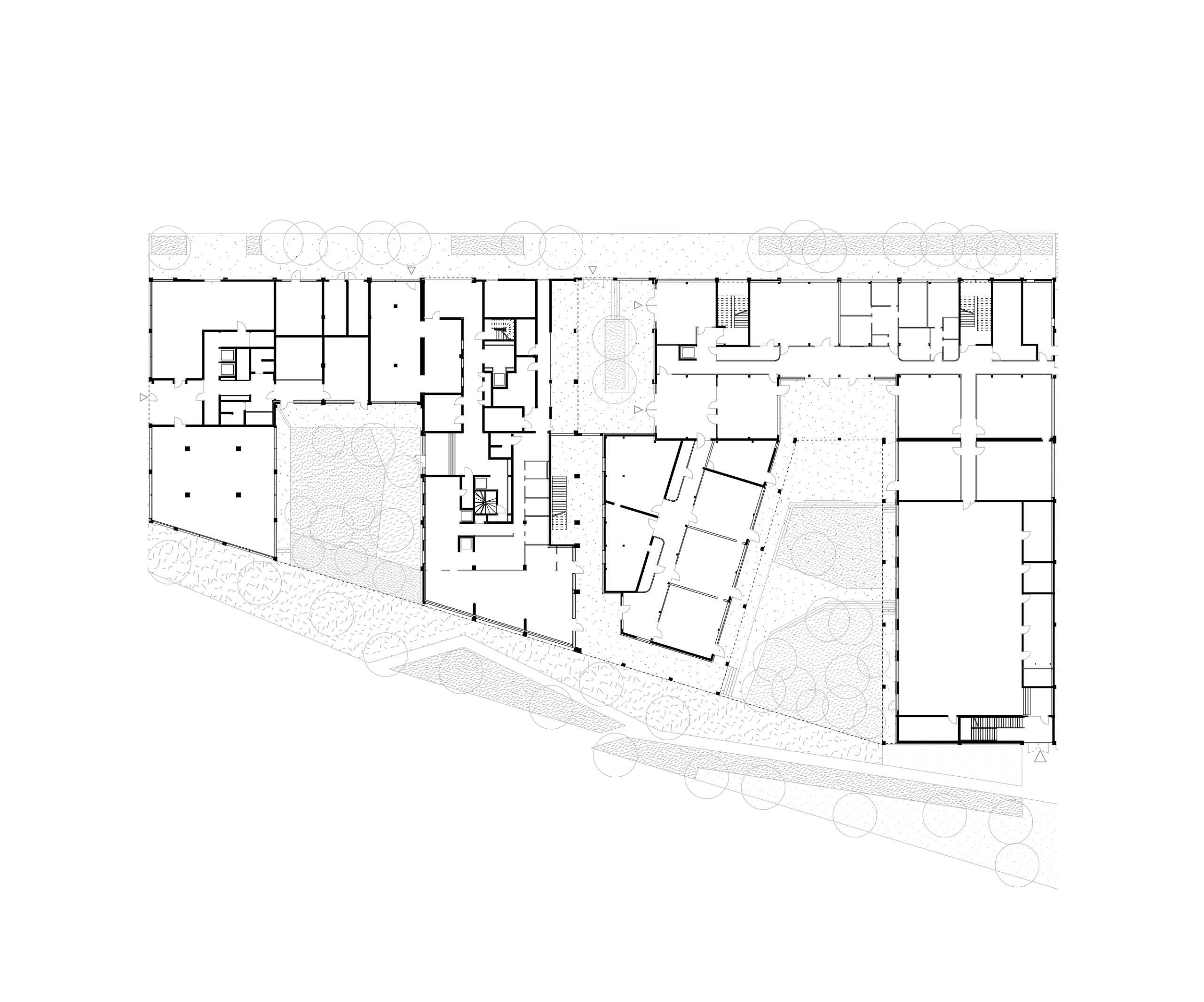
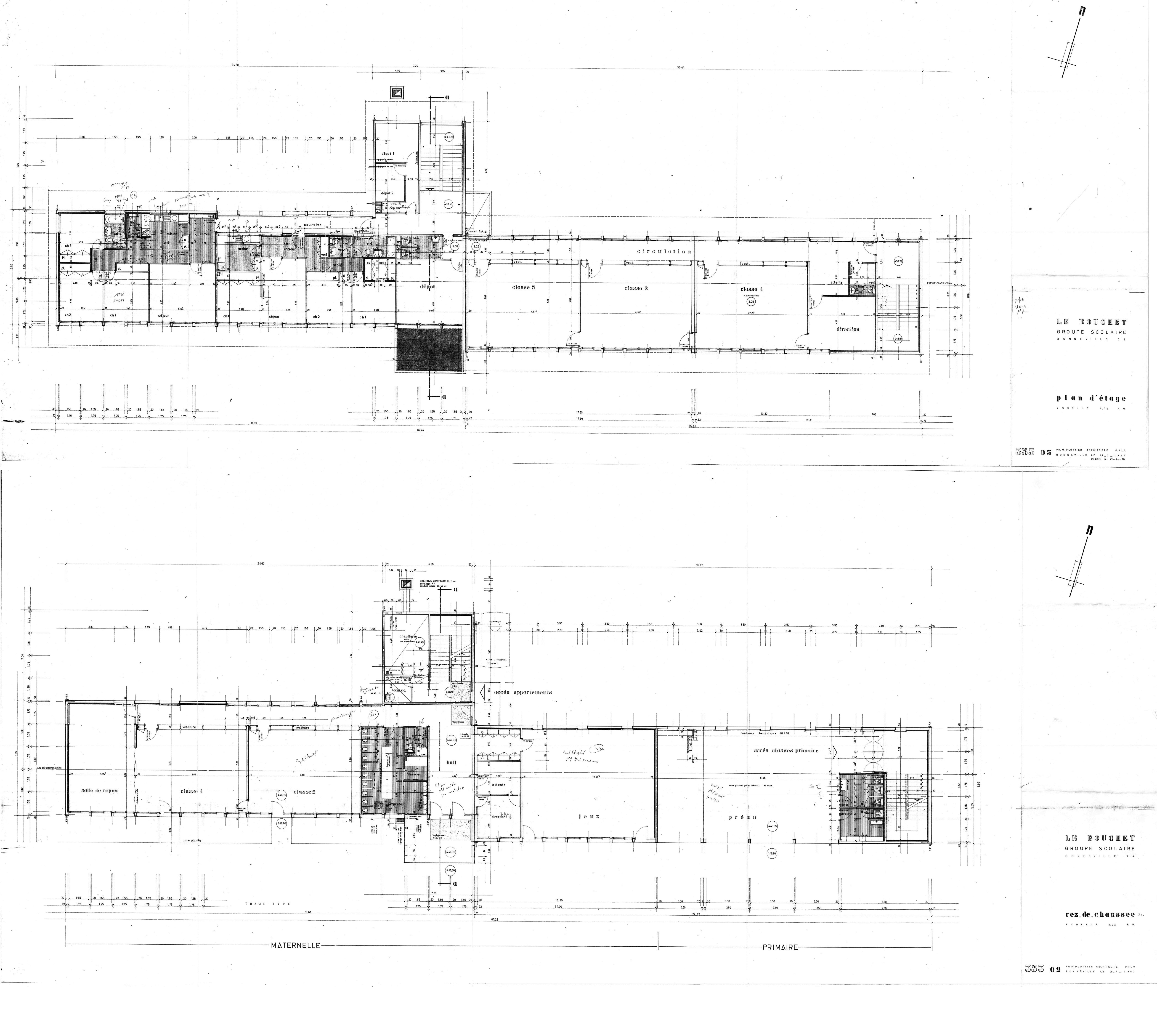
Transformation du groupe scolaire du Bouchet
Bonneville
Auvergne-Rhône-Alpes
Enseignement
2022-2025
Livré
- NomTransformation du groupe scolaire du Bouchet
- Adresse96 rue du comte vert, Bonneville, Haute-Savoie
- Maîtrise d'ouvrageMairie de Bonneville
- Date de livraisonDécembre 2025
- Durée des études21 mois
- Durée du chantier24 mois
- Programme5 classes maternelles, 6 classes élémentaires
- Surface2 707 m2
- Budget6,5 M€
- Honoraires archi484 414 €
- Honoraires totaux797 436 €
- RéglementationRT Existant – 70 %
- Émissions1 100 kgCO2eq/m2
- Consommation38 kWh/m2/an
- CertificationsBâtiment biosourcé niveau 3
- ParticularitésExtension en structure bois, isolation en laine de bois, chappe sèche, centrale de traitement d’air thermodynamique
- Descriptif courtLa restructuration lourde de ce patrimoine moderne ordinaire révèle son potentie…
- Descriptif longSitué dans la Vallée de l’Arve, la transformation du groupe scolaire du Bouchet …
- ÉquipeTectoniques (architecte, mandataire), Tectoniques Ingénieurs (économiste, fluides, structure bois, structure béton, OPC), eEgenie (QEB), Alp'VRD (VRD)
Restructuration du collège Maryse Bastié
Dole
Bourgogne-Franche-Comté
Enseignement
2019-2025
Livré
- NomRestructuration du collège Maryse Bastié
- Adresse134a avenue Léon Jouhaux, Dole, Jura
- Maîtrise d'ouvrageConseil général du Jura
- Date de livraisonNovembre 2025
- Durée des études20 mois
- Durée du chantier54 mois
- Programme26 classes, restaurant scolaire, section d’enseignement général et professionnel adapté (SEGPA)
- Surface8 248 m2
- Budget12,1 M€
- Honoraires archi724 083 €
- Honoraires totaux1,3 M€
- RéglementationRT 2012 – 50 %
- Émissions803 kgCO2eq/m2
- Consommation36,3 kWh/m2/an
- CertificationsBâtiment biosourcé niveau 3, E3C1
- ParticularitésSurélévation en bois, isolation en laine de bois, réseau de chaleur urbain, éléments préfabriqués, ventilation double flux
- Descriptif courtLe collège existant est symptomatique d’un patrimoine des années 1970 déconsidér…
- Descriptif longConstruit en 1974 par Jouven et Phelouzat (également auteurs de l'hôpital voisin…
- ÉquipeTectoniques (architecte, mandataire), Atelier du Bocal (paysagiste), Tectoniques Ingénieurs (économiste, électricité, fluides, structure béton), Arborescence (structure bois), eEgenie (QEB), Pimant (cuisiniste), DBVIB (acousticien), Laurent Buttin Concept (VRD)
Groupe scolaire Dominique Frelaut
Colombes
Île-de-France
Enseignement
2022-2025
Livré
- NomGroupe scolaire Dominique Frelaut
- Adresse1 allée Agnès Varda, Colombes, Hauts-de-Seine
- Maîtrise d'ouvrageÉco.urbain, pour la Ville de Colombes
- Date de livraisonAoût 2025
- Durée des études8 mois
- Durée du chantier24 mois
- Programme25 classes, restaurant scolaire
- Surface5 180 m2
- Budget20 M€
- Honoraires archi1,2 M€
- Honoraires totaux2,8 M€
- RéglementationRE 2020 niveau 2028 – Cep – 30 %
- Émissions744 kgCO2eq/m2
- Consommation58,8 kWh/m2/an
- CertificationsBâtiment durable francilien Or , E3C2
- ParticularitésStructure poteaux-poutres bois, planchers connectés béton-bois, isolation biosourcée, géothermie sur sondes, ventilation double flux avec sonde CO2, briques de terre compressée, toiture-terrasse végétalisée
- Descriptif courtDans un contexte urbain dense et hétérogène, l’école adopte une forme claire, à …
- Descriptif longLe groupe scolaire Dominique Frelaut s’installe dans le contexte urbain dense et…
- ÉquipeTectoniques (architecte), Altitude 35 (paysagiste), Tectoniques Ingénieurs (économiste, fluides, structure bois, structure béton), eEgenie (QEB), Biodiversita (écologue), Gamba (acousticien), PK (cuisiniste), Ivoire (VRD), SPK (SSI)
Maison des familles
Limonest
Auvergne-Rhône-Alpes
EnseignementTertiaire
2022-2025
Livré
- NomMaison des familles
- Adresse9 rue de Doncaster, Limonest, Rhône
- Maîtrise d'ouvrageCommune de Limonest, D2P (AMO)
- Date de livraisonMars 2025
- Durée des études9 mois
- Durée du chantier27 mois
- Programmecrèche de 70 berceaux, locaux associatifs polyvalents, 63 places de parking
- Surface2 106 m2
- Budget6,3 M€
- Honoraires archi465 325 €
- Honoraires totaux782 142 €
- RéglementationRT 2012 – 20 %
- Émissions973 kgCO2eq/m2
- Consommation85 kWh/m2/an
- CertificationsE3C1
- ParticularitésBéton de bois, isolation biosourcée (laine de bois, panneaux de chanvre, de coton et de lin), géothermie sur sondes, panneaux photovoltaïques, ventilation double flux, sondes CO2
- Descriptif courtSituée en centre-bourg sur un terrain en forte pente, la Maison des familles reg…
- Descriptif longLimonest est une commune située au nord de Lyon sur le versant occidental des Mo…
- ÉquipeTectoniques (architecte, mandataire), LJN (paysagiste), Tectoniques Ingénieurs (économiste, fluides, QEB, structure béton), Gamba (acousticien), Studis (VRD)
84 logements
Trévoux
Auvergne-Rhône-Alpes
Habitat
2021-2024
Livré
- Nom84 logements
- Adresse201 Allee Antoine Millan, Trévoux, Ain
- Maîtrise d'ouvrageIcade, REI Habitat
- Date de livraisonDécembre 2024
- Durée des études19 mois
- Durée du chantier27 mois
- Programme84 logements, logement partagé, 140 places de parking
- Surface6 123 m2
- Budget10 M€
- Honoraires archi6 M€
- Honoraires totaux920 000 €
- RéglementationRT 2012 – 20 %
- Émissions1 016 kgCO2eq/m2
- Consommation67 kWh/m2/an
- CertificationsE3C2, NF HQE Habitat, Bâtiment biosourcé niveau 3
- ParticularitésOssature béton et façades à ossature bois préfabriquées pour les R+5, murs à ossature bois et planchers bois pour les R+2, chaudière bois, toiture végétalisée
- Descriptif courtImplanté en lisière d’un parc public, le projet s’organise selon une composition…
- Descriptif longLe projet prend place dans l'écoquartier des Orfèvres développée par la SERL dan…
- ÉquipeTectoniques (architecte, mandataire), Axe Saône (paysagiste), Tectoniques Ingénieurs (économiste, fluides, structure bois, structure béton), Terre Eco (QEB), Leguillette (acousticien), JCA développement (OPC)
116 logements
Vénissieux
Auvergne-Rhône-Alpes
Habitat
2020-2024
Livré
- Nom116 logements
- Adresse16 boulevard Marcel Sembat, Vénissieux, Rhône
- Maîtrise d'ouvrageIcade
- Date de livraisonJuillet 2024
- Durée des études17 mois
- Durée du chantier29 mois
- Programme116 logements, 106 places de stationnement
- Surface7 900 m2
- Budget11 M€
- Honoraires archi348 960 €
- Honoraires totaux891 000 €
- RéglementationRT 2012 – 30 %
- Émissions950 kgCO2eq/m2
- Consommation49,7 kWh/m2/an
- CertificationsE3C1, NF HQE Habitat
- ParticularitésOssature béton et façades à ossature bois préfabriquées, vastes halls communs, jardins en pleine terre
- Descriptif courtImplanté dans le quartier dense de Grand Parilly, structuré par un axe paysager,…
- Descriptif longLe projet s'inscrit dans l'opération d'aménagement Grand Parilly au sud-est de L…
- ÉquipeTectoniques (architecte, mandataire), BBC & associés (architecte associé), In Situ (Paysagiste conception), BDP concept (Paysagiste exécution), Cetis (structure bois, structure béton), Prelem (fluides), Iliade Ingénierie (économiste), C+POS (QEB)
98 logements
Strasbourg
Grand Est
Habitat
2014-2024
Livré
- Nom98 logements
- Adresse16 avenue Vitry-le-François, Strasbourg, Bas-Rhin
- Maîtrise d'ouvrageNouvel Habitat
- Date de livraisonFévrier 2024
- Durée des études56 mois
- Durée du chantier61 mois
- Programme98 logements en deux bâtiments dans une ZAC
- Surface5 966 m2
- Budget11 M€
- Honoraires archi321 105 €
- Honoraires totaux1 M€
- RéglementationRT 2012 – 20 %
- Émissions926 kgCO2eq/m2
- Consommation47 kWh/m2/an
- CertificationsE2C2
- ParticularitésPompe à chaleur en cascade sur réseau de nappes partagées, structure bois, géocooling dans les planchers chauffants/rafraîchissants, logements traversants avec coursives extérieures
- ÉquipeTectoniques (architecte, mandataire), Ajeance (architecte), Tectoniques Ingénieurs (économiste, fluides, structure béton), Charpente Concept (structure bois), Peutz (acousticien), Lierman (QEB)
Restructuration et extension de la Maison des habitants
Mérignac
Nouvelle-Aquitaine
CultureEnseignementSportTertiaire
2018-2023
Livré
- NomRestructuration et extension de la Maison des habitants
- Adresse5 rue Georges Mandel, Mérignac, Gironde
- Maîtrise d'ouvrageVille de Mérignac
- Date de livraisonAvril 2023
- Durée des études15 mois
- Durée du chantier39 mois
- Programmelocaux associatifs, culturels et sportifs, bureaux de la mairie annexe, crèche de 60 berceaux
- Surface2 000 m2
- Budget5,8 M€
- Honoraires archi365 403 €
- Honoraires totaux553 125 €
- RéglementationRT 2012 – 40 %
- Consommation40,3 kWh/m2/an
- ParticularitésPompe à chaleur sur sondes, panneaux photovoltaïques 30 kWc, ossature bois, isolation biosourcée
- ÉquipeTectoniques (architecte, mandataire), Tectoniques Ingénieurs (économiste, électricité, fluides, structure bois, OPC), Arborescence (structure bois), A+R (paysagiste), Link (acousticien)
Maison des sports
Malafretaz
Auvergne-Rhône-Alpes
Sport
2021-2023
Livré
- NomMaison des sports
- Adresse599 route d'Etrez, Malafretaz, Ain
- Maîtrise d'ouvrageGrand Bourg Agglomération
- Date de livraisonAvril 2023
- Durée des études17 mois
- Durée du chantier7 mois
- Programmeaccueil location nautique, maintenance des bateaux, sanitaires et vestiaires publics
- Surface760 m2
- Budget957 400 €
- Honoraires archi64 655,17 €
- Honoraires totaux104 305,57 €
- ParticularitésOssature bois, isolation en fibre de bois, ventilation naturelle
- ÉquipeTectoniques (architecte)
Groupes scolaires Jacqueline Auriol et Jean Jaurès
Le Bourget
Île-de-France
Enseignement
2019-2023
Livré
- NomGroupes scolaires Jacqueline Auriol et Jean Jaurès
- Adresse41 avenue Baudoin, Le Bourget, Seine-Saint-Denis
- Maîtrise d'ouvrageVille du Bourget, Solideo, Sato (AMO)
- Date de livraisonJanvier 2023
- Durée des études17 mois
- Durée du chantier22 mois
- Programme2 écoles maternelle et élémentaire, 25 classes, 2 restaurants scolaires
- Surface8 000 m2
- Budget25 M€
- Honoraires archi847 345,36 €
- Honoraires totaux2,5 M€
- Émissions881,5 kgCO2eq/m2
- Consommation103 kWh/m2/an
- CertificationsPassivhaus, E3C1, Bâtiment durable francilien Argent
- ParticularitésOssature bois, isolation biosourcée, triple vitrage
- Descriptif courtImplantés en lisière du parc des sports du Bourget, les groupes scolaires Jacque…
- Descriptif longLes groupes scolaires Jacqueline Auriol et Jean Jaurès s'inscrivent dans l'aména…
- ÉquipeTectoniques (architecte), Ajeance (architecte associé), A003 (architecte associé), Sortons du bois (paysagiste), Tectoniques Ingénieurs (économiste, électricité, structure béton), Arborescence (structure bois), Solares Bauen (fluides, QEB), Ivoire (VRD), Aïda (acousticien), AC2R (cuisiniste)
Collège du Ban
Vagney
Grand Est
Enseignement
2019-2022
Livré
- NomCollège du Ban
- Adresse5 rue Jules Ferry, Vagney, Vosges
- Maîtrise d'ouvrageConseil départemental des Vosges
- Date de livraisonDécembre 2022
- Durée des études18 mois
- Durée du chantier21 mois
- Programme480 élèves, 16 classes
- Surface4 800 m2
- Budget10,7 M€
- Honoraires archi494 928,20 €
- Honoraires totaux1,7 M€
- RéglementationRT 2012 – 50 %
- Émissions902 kgCO2eq/m2
- Consommation18 kWh/m2/an
- CertificationsE3C1, Bâtiment biosourcé niveau 3
- ParticularitésMurs et caissons en bois isolés, isolation biosourcée (fibre de bois, laine de bois), bardage bois, ventilation double flux avec modules adiabatiques, ventilation naturelle
- Descriptif courtLe projet s’installe en lieu et place d’un ancien collège vétuste, dans une plai…
- Descriptif longDans ce territoire de plaine rurale dominée par la forêt vosgienne, le projet co…
- ÉquipeTectoniques (architecte, mandataire), Squad Architectes (architecte associé), LSW (architecte associé), Itinéraire bis (paysagiste), Tectoniques Ingénieurs (économiste, électricité, fluides, structure béton), Perrin & associés (structure bois), eEgenie (QEB), Link (acousticien)
Groupe scolaire et crèche Denis Mukwege
Melun
Île-de-France
Enseignement
2018-2022
Livré
- NomGroupe scolaire et crèche Denis Mukwege
- Adresse433 avenue Paul-Émile Victor, Melun, Seine-et-Marne
- Maîtrise d'ouvrageVille de Melun
- Date de livraisonSeptembre 2022
- Durée des études25 mois
- Durée du chantier22 mois
- Programme16 classes, restaurant scolaire, crèche, logement de fonction
- Surface4 185 m2
- Budget11,7 M€
- Honoraires archi573 087,39 €
- Honoraires totaux1,4 M€
- RéglementationRT 2012 – 50 %
- Consommation50 kWh/m2/an
- CertificationsE3C2
- ParticularitésStructure bois, conception bioclimatique, toitures végétalisées, isolation en chanvre local, ventilation double flux
- Descriptif courtL’école constitue la pièce centrale du projet urbain de la ZAC. Dans cet environ…
- ÉquipeTectoniques (architecte, mandataire), Z architecture (architecte associé), Itinéraire bis (paysagiste), Tectoniques Ingénieurs (économiste, électricité, fluides, structure béton), Arborescence (structure bois), DBVIB (acousticien), eEgenie (QEB)
Workshop 60x60, BAP! Île-de-France
Versailles
Île-de-France
Culture
2021-2022
Livré
- NomWorkshop 60x60, BAP! Île-de-France
- Adresse5 avenue de Sceaux, Versailles, Yvelines
- Date de livraisonJuin 2022
- Durée des études10 mois
- Programmeworkshop d’étudiants, installation éphémère
- Surface103 m2
- ParticularitésOssature bois, polyane
- Descriptif courtCe workshop, organisé dans le cadre de la seconde édition de la Biennale d’archi…
- ÉquipeTectoniques (architecte, mandataire), MEHA Construction Bois (Sponsor), Cédric Libert à l’ENSASE (remerciements), Klaas de Rycke à l’ENSAV (remerciements)
Médiathèque et groupe scolaire Claudie Haigneré
Les Pennes-Mirabeau
Provence-Alpes-Côte d'Azur
CultureEnseignement
2016-2022
Livré
- NomMédiathèque et groupe scolaire Claudie Haigneré
- Adresse1 chemin de Val Sec, Les Pennes-Mirabeau, Bouches-du-Rhône
- Maîtrise d'ouvrageVille des Pennes-Mirabeau
- Date de livraisonMai 2022
- Durée des études27 mois
- Durée du chantier43 mois
- Programmesalle de spectacle, groupe scolaire de 15 classes, médiathèque, restaurant, logement de fonction
- Surface5 875 m2
- Budget15 M€
- Honoraires archi840 390,15 €
- Honoraires totaux2,3 M€
- CertificationsBâtiment durable méditerranéen Or
- Descriptif courtLe projet rassemble un groupe scolaire, un restaurant intergénérationnel et un c…
- ÉquipeTectoniques (architecte, mandataire), Atelier GA (architecte), Tectoniques Ingénieurs (économiste), Arborescence (structure bois), Itinéraire bis (paysagiste), Igbat&Co (électricité, fluides, structure béton), Ellipse (VRD), EODD (QEB), DBVIB (acousticien), AGC Cuisine (cuisiniste)
Maison de l’enfance Simone Veil
Albertville
Auvergne-Rhône-Alpes
Enseignement
2017-2020
Livré
- NomMaison de l’enfance Simone Veil
- Adresse842 rue commandant dubois, Albertville, Savoie
- Maîtrise d'ouvrageVille d’Albertville, communauté de communes Arlysère
- Date de livraisonFévrier 2020
- Durée des études19 mois
- Durée du chantier13 mois
- Programmecrèche d’accueil, crèche multi-familiale, restaurant
- Surface2 400 m2
- Budget6,1 M€
- Honoraires archi393 404 €
- Honoraires totaux701 224,50 €
- RéglementationE3C1
- Consommation40,5 kWh/m2/an
- CertificationsE3C1, BEPOS
- ParticularitésBois des Alpes, réseau de chaleur à la biomasse, isolation biosourcée et en matériauxrecyclés
- Descriptif courtLa Maison de l’enfance à Albertville constitue le premier jalon d’un projet ANRU…
- ÉquipeTectoniques (architecte, mandataire), Tectoniques Ingénieurs (économiste, électricité, fluides, structure béton), Arborescence (structure bois), eEgenie (QEB), DBVIB (acousticien), Atelier du Bocal (paysagiste), Pimant (cuisiniste), Ginger (géotechnicien)
Maison des arts
Charbonnières-les-Bains
Auvergne-Rhône-Alpes
CultureEnseignement
2017-2020
Livré
- NomMaison des arts
- Adresse1 montée du Vieux Pont, Charbonnières-les-Bains, Rhône
- Maîtrise d'ouvrageCommune de Charbonnières-les-Bains
- Date de livraisonJanvier 2020
- Durée des études15 mois
- Durée du chantier19 mois
- Programmesalle de danse, 2 salles de répétition, 14 salles de cours de musique
- Surface1 289 m2
- Budget2,7 M€
- Honoraires archi204 900 €
- Honoraires totaux351 960 €
- RéglementationRT 2012 – 50 %
- Consommation73,9 kWh/m2/an
- CertificationsE3C1, BBC Effinergie
- ParticularitésPompe à chaleur au gaz sur sondes géothermiques, panneaux photovoltaïques, isolation biosourcée, béton teinté matricé brut de décoffrage
- Descriptif courtLa Maison des arts s’insère dans un site contraint, le long d’une voie ferrée, a…
- ÉquipeTectoniques (architecte, mandataire), Régéneration (paysagiste), Tectoniques Ingénieurs (économiste, fluides, structure béton), Arborescence (structure bois), eEgenie (QEB), DBVIB (acousticien)
28 logements
Villeurbanne
Auvergne-Rhône-Alpes
Habitat
2016-2020
Livré
- Nom28 logements
- Adresse8 rue Meunier, Villeurbanne, Rhône
- Maîtrise d'ouvrageEst Métropole Habitat
- Date de livraisonJanvier 2020
- Durée des études22 mois
- Durée du chantier25 mois
- Programme28 logements en R+4, deux niveaux de sous-sols, terrasse partagée
- Surface1 819 m2
- Budget3,3 M€
- Honoraires archi196 383,90 €
- Honoraires totaux282 952,01 €
- RéglementationRT 2012
- Consommation46,5 kWh/m2/an
- CertificationsBEE+
- ParticularitésFaçades légères en bois, isolation biosourcée, capteurs solaires thermiques
- Descriptif courtLe projet de logements s’organise en trois corps de bâtiment aux hauteurs décroi…
- Descriptif longLe projet de logements articule trois corps de bâtiment, de hauteurs décroissant…
- ÉquipeTectoniques (architecte, mandataire), Tectoniques Ingénieurs (économiste, électricité, fluides), ETBA (structure béton)
Poste source
Villeurbanne
Auvergne-Rhône-Alpes
Infrastructure
2016-2019
Livré
- NomPoste source
- Adresse82 rue de Pierrefrite, Villeurbanne, Rhône
- Maîtrise d'ouvrageEnedis
- Date de livraisonDécembre 2019
- Durée des études28 mois
- Durée du chantier14 mois
- Programme8 demi-rames haute tension A (HTA), locaux techniques, vestiaires, galeries
- Surface1 275 m2
- Budget3,2 M€
- Honoraires archi179 449,25 €
- Honoraires totaux271 293,35 €
- ParticularitésPisé, ventilation naturelle assistée, pompe à chaleur géothermique réversible
- Descriptif courtLe poste source de Cusset, infrastructure essentielle à l’alimentation électriqu…
- Descriptif longUn poste source est un ouvrage industriel qui gère la jonction des lignes électr…
- ÉquipeTectoniques (architecte, mandataire), Tectoniques Ingénieurs (économiste, fluides, structure béton), Milieu Studio (QEB), CraTerre (construction terre), BeTerre (construction terre)
36 logements
Vauhallan
Île-de-France
Habitat
2013-2019
Livré
- Nom36 logements
- AdresseAllee du Verger, Vauhallan, Essonne
- Maîtrise d'ouvrageOpievoy
- Date de livraisonJuin 2019
- Durée des études36 mois
- Durée du chantier40 mois
- Programme36 logements intermédiaires
- Surface2 440 m2
- Budget3,6 M€
- Honoraires archi203 500 €
- Honoraires totaux498 180 €
- RéglementationRT 2012
- ParticularitésVentilation naturelle, récupération des eaux pluviales
- ÉquipeTectoniques (architecte), Tectoniques Ingénieurs (fluides), S2T (acousticien)
Halle de marché
Marcy-l'Étoile
Auvergne-Rhône-Alpes
Infrastructure
2017-2019
Livré
- NomHalle de marché
- Adresseplace Fleury Lancelin, Marcy-l'Étoile, Rhône
- Maîtrise d'ouvrageCommune de Marcy-l’Étoile
- Date de livraisonJuin 2019
- Durée des études18 mois
- Durée du chantier4 mois
- Programmehalle communale polyvalente
- Surface458 m2
- Budget362 500 €
- Honoraires archi36 150,60 €
- Honoraires totaux56 313,10 €
- ParticularitésCharpente tissée de lames en bois lamellé-collé
- Descriptif courtLa halle offre un espace couvert polyvalent sur la place principale du centre-vi…
- ÉquipeTectoniques (architecte, mandataire), Tectoniques Ingénieurs (économiste, fluides, structure béton), Arborescence (structure bois)
Maison
Saint-Cyr-au-Mont-d'Or
Auvergne-Rhône-Alpes
Habitat
2016-2019
Livré
- NomMaison
- Adresse16 rue Ampère, Saint-Cyr-au-Mont-d'Or, Rhône
- Maîtrise d'ouvragePrivée
- Date de livraisonAvril 2019
- Durée des études12 mois
- Durée du chantier27 mois
- Programmemaison individuelle
- Surface120 m2
- Budget686 000 €
- Honoraires archi42 375 €
- Honoraires totaux50 475 €
- RéglementationRT 2012 – 40 %
- ParticularitésBéton teinté à l’ocre et vibré à la main, banches traditionnelles
- Descriptif courtLa maison s’encastre dans un vallon en forte pente. Elle se présente comme un bl…
- ÉquipeTectoniques (architecte, mandataire), Tectoniques Ingénieurs (économiste, électricité, fluides, structure béton), Sandrine Ligonnet (paysagiste)
Rénovation et surélévation d’un bâtiment tertiaire
Saint-Martin-Belle-Roche
Bourgogne-Franche-Comté
Tertiaire
2016-2019
Livré
- NomRénovation et surélévation d’un bâtiment tertiaire
- Adresse84 route Nationale 6, Saint-Martin-Belle-Roche, Saône-et-Loire
- Maîtrise d'ouvrageRégilait SAS
- Date de livraisonAvril 2019
- Durée des études14 mois
- Durée du chantier22 mois
- Programmeajout d’un étage de bureaux en open space, isolation et habillage des façades
- Surface1 001 m2
- Budget720 000 €
- Honoraires archi51 060 €
- Honoraires totaux62 400 €
- Descriptif courtLe projet surélève un bâtiment des années 1970 pour créer de nouvelles surfaces …
- Descriptif longL’opération consiste à surélever un bâtiment de bureau existant pour créer de no…
- ÉquipeTectoniques (architecte, mandataire), Tectoniques Ingénieurs (économiste, électricité, structure bois), ID5 (fluides)
Parking silo
Strasbourg
Grand Est
Infrastructure
2015-2019
Livré
- NomParking silo
- Adresse16 avenue Vitry-le-François, Strasbourg, Bas-Rhin
- Maîtrise d'ouvrageBouygues Immobilier
- Date de livraisonJanvier 2019
- Durée des études30 mois
- Durée du chantier18 mois
- Programme341 places de parking, R+5, façade bois
- Surface8 598 m2
- Budget3,4 M€
- Honoraires archi36 325 €
- Honoraires totaux36 325 €
- ÉquipeAjeance (architecte, mandataire), Tectoniques (architecte), SERUE (TCE)
Réhabilitation et extension d’une auberge de jeunesse
Les Deux Alpes
Auvergne-Rhône-Alpes
Hôtellerie
2015-2018
Livré
- NomRéhabilitation et extension d’une auberge de jeunesse
- Adresse1 route de Champamé, Les Deux Alpes, Isère
- Maîtrise d'ouvrageADIM Lyon
- Date de livraisonDécembre 2018
- Durée des études20 mois
- Durée du chantier17 mois
- Programme362 lits, 45 chambres doubles, 43 dortoirs, restaurant
- Surface3 140 m2
- Budget6,1 M€
- Honoraires archi274 845,22 €
- Honoraires totaux412 940,72 €
- RéglementationRT Existant – 40 %
- Consommation177 kWh/m2/an
- CertificationsBâtiment biosourcé niveau 3
- ParticularitésStructure en bois lamellé-croisé français pour murs et planchers
- Descriptif courtSituée à l’entrée de la station, l’ancienne structure UCPA est transformée en au…
- Descriptif longThe People Hostel est un concept de « One Stop Hostel » qui propose l’accessibil…
- ÉquipeTectoniques (architecte, mandataire), Tectoniques Ingénieurs (économiste, électricité, fluides), Arborescence (structure bois), CEBEA (structure béton), Oxyelec (SSI), DBVIB (acousticien), Pimant (cuisiniste), Kaena (géotechnicien)
Maison de santé
Annecy
Auvergne-Rhône-Alpes
Santé
2017-2026
Livré
- NomMaison de santé
- Adresse36 rue du Printemps, Annecy, Haute-Savoie
- Maîtrise d'ouvrageHaute-Savoie Habitat
- Date de livraisonOctobre 2018
- Durée du chantier15 mois
- Programmemaison de santé pluridisciplinaire
- Surface1 153 m2
- Budget1,7 M€
- Honoraires archi216 000 €
- Honoraires totaux458 000 €
- RéglementationRT 2012 – 50 %
- Consommation102,8 kWh/m2/an
- ParticularitésPompe à chaleur air-eau, construction bois sur 3 niveaux, isolation biosourcée
- ÉquipeTectoniques (architecte), Tectoniques Ingénieurs (économiste, fluides), Charpente Concept (structure bois)
École élémentaire Hubert Reeves
Champagnole
Bourgogne-Franche-Comté
Enseignement
2014-2018
Livré
- NomÉcole élémentaire Hubert Reeves
- Adresse22 rue de la Liberté, Champagnole, Jura
- Maîtrise d'ouvrageCommunauté de communes Champagnole Nozeroy Jura
- Date de livraisonMai 2018
- Durée des études28 mois
- Durée du chantier16 mois
- Programme8 classes, 2 classes spécialisées, 2 salles périscolaires, bibliothèque
- Surface1 400 m2
- Budget2,4 M€
- Honoraires archi249 400 €
- Honoraires totaux399 700 €
- RéglementationRT 2012 – 50 %
- Consommation60 kWh/m2/an
- ParticularitésBois du Jura
- Descriptif courtInstallée dans un contexte périurbain ordinaire, l’école est organisée autour d’…
- ÉquipeTectoniques (architecte, mandataire), Tectoniques Ingénieurs (économiste, fluides), Perrin & associés (structure bois), Étamine (QEB)
Biodiversarium
Banyuls-sur-Mer
Occitanie
Culture
2010-2017
Livré
- NomBiodiversarium
- Adresse19 avenue Pierre Fabre, Banyuls-sur-Mer, Pyrénées-Orientales
- Maîtrise d'ouvrageUniversité Pierre et Marie Curie – Paris Sorbonne
- Date de livraisonDécembre 2017
- Durée des études49 mois
- Durée du chantier38 mois
- Programmeaquariums, bureaux, laboratoires, locaux de projection et de conférences, espaces d’exposition
- Surface5 461 m2
- Budget7,6 M€
- Honoraires archi623 560 €
- Honoraires totaux1,3 M€
- RéglementationRT 2012 – 40 %
- ParticularitésConstruction mixte bois-béton
- Descriptif courtLe Biodiversarium est dédié à la recherche et à la diffusion de la connaissance …
- ÉquipeTectoniques (architecte, mandataire), Architecture Environnement (architecte), Tectoniques Ingénieurs (économiste), Jacques Anglade (structure bois), Igbat&Co (fluides, structure béton, VRD), ITF (BET Aquarium), Inddigo (QEB)
55 logements
Lyon
Auvergne-Rhône-Alpes
Habitat
2012-2017
Livré
- Nom55 logements
- Adresse157 avenue Jean Mermoz, Lyon, Rhône
- Maîtrise d'ouvrageGrand Lyon Habitat
- Date de livraisonOctobre 2017
- Durée des études36 mois
- Durée du chantier24 mois
- Programme2 immeubles de 33 et 22 logements, aire de stationnement
- Surface4 310 m2
- Budget6,5 M€
- Honoraires archi298 377,66 €
- Honoraires totaux680 263,20 €
- Descriptif courtLe projet de logements s’inscrit dans la transformation urbaine de la ZAC Mermoz…
- Descriptif longFormé des deux résidences ”Delta” et ”Foxtrot”, le projet situé dans la ZAC Merm…
- ÉquipeTectoniques (architecte, mandataire), Tectoniques Ingénieurs (économiste), ETBA (structure béton), Inddigo (fluides, QEB), Peutz (acousticien)
65 logements
Seyssins
Auvergne-Rhône-Alpes
Habitat
2012-2017
Livré
- Nom65 logements
- Adresse91 avenue de Claix, Seyssins, Isère
- Maîtrise d'ouvrageVinci Immobilier, Grenoble Habitat
- Date de livraisonJanvier 2017
- Durée des études37 mois
- Durée du chantier19 mois
- Programme18 logements sociaux, 47 logements en accession
- Surface4 795 m2
- Budget6,7 M€
- Honoraires archi328 750 €
- Honoraires totaux456 750 €
- RéglementationRT 2005
- CertificationsBBC Effinergie
- ParticularitésStructure mixte bois-béton, eau chaude sanitaire solaire
- Descriptif courtL’ensemble de logements constitue la première pièce d’un projet urbain inscrit e…
- Descriptif longLe lot C2 est la première pièce de l’aménagement de l’éco-quartier Pré Nouvel, s…
- ÉquipeTectoniques (architecte, mandataire), Tectoniques Ingénieurs (économiste, QEB), Egis (fluides, structure bois, structure béton, VRD)
60 logements
Rive-de-Gier
Auvergne-Rhône-Alpes
Habitat
2012-2015
Livré
- Nom60 logements
- Adresserue du Puits Bonaventure, Rive-de-Gier, Loire
- Maîtrise d'ouvrageI3F
- Date de livraisonOctobre 2015
- Durée des études20 mois
- Durée du chantier19 mois
- Programme10 maisons en bande, 16 logements intermédiaires, 18 logements collectifs en R+2, 16 en R+5
- Surface4 390 m2
- Budget5,3 M€
- Honoraires archi261 950 €
- Honoraires totaux491 395 €
- RéglementationRT 2012
- CertificationsBBC Effinergie, Qualitel H&E
- ParticularitésPréfabrication massive 5D
- Descriptif courtAssociant logements individuels groupés, habitat intermédiaire et petits collect…
- Descriptif longL’agence Tectoniques a de nombreuses références de logements au sein d’éco-quart…
- ÉquipeTectoniques (architecte), Tectoniques Ingénieurs (fluides), Arborescence (structure bois), Arcoba (QEB), Peutz (acousticien)
Centre de loisirs
Givors
Auvergne-Rhône-Alpes
CultureEnseignementSport
2012-2015
Livré
- NomCentre de loisirs
- Adresse42 chemin de la Rama, Givors, Rhône
- Date de livraisonJuillet 2015
- Durée des études16 mois
- Durée du chantier20 mois
- Programmecentre de loisirs, bureaux, restaurant, cuisine
- Surface1 150 m2
- Budget2,8 M€
- Honoraires archi241 425 €
- Honoraires totaux369 660 €
- RéglementationRT 2012
- ParticularitésPompe à chaleur air-eau, ventilation double flux, socle en béton, ossature bois, bois lamellé-croisé, toiture végétalisée
- Descriptif courtLe centre de loisirs de Givors s’inscrit dans un site rural en belvédère, en lis…
- Descriptif longGivors est une commune située à 20 km au Sud de Lyon. Ville gérée par des élus c…
Gymnase Hacine Cherifi
Rillieux-la-Pape
Auvergne-Rhône-Alpes
Sport
2009-2015
Livré
- NomGymnase Hacine Cherifi
- Adresse22 rue Fleury Salignat, Rillieux-la-Pape, Rhône
- Maîtrise d'ouvrageVille de Rillieux-la-Pape
- Date de livraisonJanvier 2015
- Durée des études48 mois
- Durée du chantier16 mois
- Programmesalle de compétition multisport, gradins 200 places, salle d’entraînement gymnastique
- Surface3 740 m2
- Budget3,7 M€
- Honoraires archi818 773,35 €
- Honoraires totaux1,3 M€
- RéglementationRT 2005
- Consommation80,6 kWh/m2/an
- ParticularitésIsolation en paille, chaudière bois
- Descriptif courtDans un milieu urbain hétérogène, le gymnase forme un ensemble cohérent avec le …
- Descriptif longLe groupe scolaire Paul Chevallier est situé à Rillieux-la-Pape, au Nord de Lyon…
- ÉquipeTectoniques (architecte, mandataire), Tectoniques Ingénieurs (économiste), Arborescence (structure bois), Inddigo (QEB), Somival (fluides, structure béton), Itinéraire bis (paysagiste)
Reconstruction et extension du collège Pierre-Joseph Proudhon
Besançon
Bourgogne-Franche-Comté
Enseignement
2008-2014
Livré
- NomReconstruction et extension du collège Pierre-Joseph Proudhon
- Adresse11 rue léon jouhaux, Besançon, Doubs
- Maîtrise d'ouvrageDépartement du Doubs
- Date de livraisonSeptembre 2014
- Durée des études33 mois
- Durée du chantier39 mois
- ProgrammeSection SEGPA, salle polyvalente, restaurant scolaire
- Surface10 100 m2
- Budget13,5 M€
- Honoraires archi518 778,82 €
- Honoraires totaux1,4 M€
- RéglementationRT 2005
- Consommation76 kWh/m2/an
- CertificationsBâtiment biosourcé niveau 3
- ParticularitésPlancher mixte bois-béton avec assemblage par tiges collées, chantier en site occupé
- Descriptif courtL’intervention consiste à restructurer et étendre le collège Proudhon, construit…
- ÉquipeTectoniques (architecte, mandataire), Adelfo Scaranello (architecte), CEI (économiste), Thermibel (électricité, fluides), FDI (structure béton), Perrin & associés (structure bois), Inddigo (QEB), Jean-Baptiste Lestra (paysagiste), Clic (cuisiniste), Echologos (acousticien)
Maison de la petite enfance
Autun
Bourgogne-Franche-Comté
Enseignement
2011-2014
Livré
- NomMaison de la petite enfance
- Adresse10 rue Henri Dunant, Autun, Saône-et-Loire
- Maîtrise d'ouvrageCommunauté de communes du Grand Autunois Morvan
- Date de livraisonJuillet 2014
- Durée des études19 mois
- Durée du chantier15 mois
- Programmecrèche multi-accueil de 91 berceaux, relais d’assistantes maternelles
- Surface1 370 m2
- Budget2,9 M€
- Honoraires archi268 575 €
- Honoraires totaux391 774 €
- RéglementationRT 2012 – 50 %
- ParticularitésOssature bois avec refend intérieur en béton pour le confort accoustique et l’inertie thermique, fondations sur micro-pieux (vestiges archéologiques), surventilation nocturne
- Descriptif courtLa Maison de la petite enfance d’Autun affirme une présence architecturale singu…
- Descriptif longLa Maison de la petite enfance à Autun est un objet architectural étonnant dans …
- ÉquipeTectoniques (architecte, mandataire), Tectoniques Ingénieurs (économiste), Arborescence (structure bois), Thermibel (électricité, fluides)
Maison de l’environnement Aquaterra
Hénin-Beaumont
Hauts-de-France
Culture
2010-2013
Livré
- NomMaison de l’environnement Aquaterra
- Adresse1573 boulevard des Freres Leterme, Hénin-Beaumont, Pas-de-Calais
- Maîtrise d'ouvrageCommunauté d’agglomération Hénin-Carvin
- Date de livraisonAvril 2013
- Durée des études22 mois
- Durée du chantier15 mois
- Programmeespaces d’exposition, jardin intérieur, bureaux
- Surface1 035 m2
- Budget4,1 M€
- Honoraires archi179 088,40 €
- Honoraires totaux477 183,91 €
- RéglementationRT 2005
- Consommation32 kWh/m2/an
- CertificationsBBC Effinergie, Minergie
- ParticularitésSerre végétale à vocation thermique, panneaux photovoltaïques, façades en briques de douglas rétifiées, ventilation double flux, chaudière bois
- Descriptif courtSitué dans le parc des Îles, le pavillon accompagne la reconversion d’un ancien …
- ÉquipeTectoniques (architecte, mandataire), Ilex (paysagiste), Tectoniques Ingénieurs (économiste), Arborescence (structure bois), Inddigo (fluides, QEB), Manning (VRD)
Laboratoire de l’INRAE
Champenoux
Grand Est
Tertiaire
2008-2012
Livré
- NomLaboratoire de l’INRAE
- AdresseChampenoux, Meurthe-et-Moselle
- Maîtrise d'ouvrageINRA
- Date de livraisonAvril 2012
- Durée des études18 mois
- Durée du chantier28 mois
- ProgrammeBureaux, locaux d’accueil, laboratoires
- Surface1 440 m2
- Budget5,5 M€
- Honoraires archi454 417,68 €
- Honoraires totaux778 102,79 €
- RéglementationRT 2005
- Consommation42 kWh/m2/an
- CertificationsNF HQE Tertiaire
- ParticularitésChaudière à la biomasse avec plantations sur site, puits canadien, structure en sapin des Vosges massif, panneaux photovoltaïques
- Descriptif courtLe site de l’INRAE de Champenoux est dédié à la recherche en écologie et génomiq…
- ÉquipeTectoniques (architecte, mandataire), Tectoniques Ingénieurs (économiste), Jacques Anglade (structure bois), Sechaud et Boussuyt (électricité, fluides), Inddigo (QEB), Itinéraire bis (paysagiste)
École et centre de loisirs Jean Carrière
Nîmes
Occitanie
Enseignement
2008-2011
Livré
- NomÉcole et centre de loisirs Jean Carrière
- Adresse15 rue Maurice Fayet, Nîmes, Gard
- Maîtrise d'ouvrageVille de Nîmes
- Date de livraisonDécembre 2011
- Durée des études18 mois
- Durée du chantier22 mois
- Programme6 classes, salle de psychomotricité, centre de loisirs, restaurant scolaire
- Surface1 750 m2
- Budget30,5 M€
- Honoraires archi138 519,32 €
- Honoraires totaux454 472,78 €
- RéglementationRT 2005
- Émissions280 kgCO2eq/m2
- Consommation40 kWh/m2/an
- CertificationsBâtiment durable méditerranéen Or, BBC Effinergie
- ParticularitésGéothermie avec pompe à chaleur réversible, isolation en ouate de cellulose et fibre de bois
- Descriptif courtInstallée en zone inondable au milieu de grands platanes, l’école s’élève sur pi…
- ÉquipeTectoniques (architecte, mandataire), Atelier GA (architecte), Jacques Anglade (structure bois), Igbat&Co (économiste, électricité, fluides, structure béton), Inddigo (QEB), Itinéraire bis (paysagiste), Les éclaireurs (concepteur lumière), Egis (VRD)
Ehpad
Sault
Provence-Alpes-Côte d'Azur
Santé
2008-2011
Livré
- NomEhpad
- Adresse1 rue de l'hôpital, Sault, Vaucluse
- Maîtrise d'ouvrageCitadis
- Date de livraisonJanvier 2011
- Durée des études15 mois
- Durée du chantier20 mois
- Programme56 lits, dont 17 lits pour moyens séjours et 39 lits pour la maison de retraite
- Surface2 483 m2
- Budget6 M€
- Honoraires archi322 115,02 €
- Honoraires totaux559 500 €
- ParticularitésCharpente en bois avec isolation biosourcée, eau chaude sanitaire solaire avec chaudière à gaz en appoint, puits canadien
- Descriptif courtL’hôpital de Sault adopte une architecture en H qui optimise la distribution des…
- Descriptif longLe découpage et l’implantation du bâtiment dégagent de grands jardins, qui valor…
- ÉquipeTectoniques (architecte, mandataire), Igbat&Co (TCE), IMR (Cuisiniste), EPC (OPC)
Ehpad
Mervans
Bourgogne-Franche-Comté
Santé
2007-2010
Livré
- NomEhpad
- Adresse4 rue de la Varenne, Mervans, Saône-et-Loire
- Maîtrise d'ouvrageConseil général de Saône-et-Loire
- Date de livraisonDécembre 2010
- Durée des études20 mois
- Durée du chantier27 mois
- Programme82 lits, unité Alzheimer, services associés
- Surface4 850 m2
- Budget7,2 M€
- Honoraires archi510 008,04 €
- Honoraires totaux952 100 €
- RéglementationRT 2005
- ParticularitésOssature bois, isolation en laine de bois, puits canadien, chaudière bois, eau chaude sanitaire solaire
- Descriptif courtSitué dans un contexte pavillonnaire, l’établissement est organisé en deux ailes…
- ÉquipeTectoniques (architecte, mandataire), Arborescence (structure bois), Technip (économiste, électricité, fluides, QEB, structure béton)
Réhabilitation d’un local d’activités
Lyon
Auvergne-Rhône-Alpes
Tertiaire
2008-2010
Livré
- NomRéhabilitation d’un local d’activités
- Adresse11 boulevard Eugène Deruelle, Lyon, Rhône
- Maîtrise d'ouvrageSCI TDN
- Date de livraisonJuillet 2010
- Durée des études17 mois
- Durée du chantier9 mois
- Programmelocaux d’une agence d’architecture
- Surface500 m2
- Honoraires archi30 000 €
- Honoraires totaux30 000 €
- RéglementationRT 2012 – 50 %
- ParticularitésSur-isolation, pompe à chaleur sur forage, ventilation naturelle nocturne
- Descriptif courtSitué en cœur d’îlot dans une ancienne imprimerie de La Part-Dieu, le projet off…
- ÉquipeTectoniques (architecte, mandataire), Arborescence (structure bois), Technip (électricité, fluides), Tectoniques Ingénieurs (économiste), Inddigo (QEB), Les Éclairagistes (Éclairage), Antea Group (Hydrologue), Itinéraire bis (paysagiste)
Centre thermal
Balaruc-les-Bains
Occitanie
HôtellerieSantéSport
2006-2010
Livré
- NomCentre thermal
- Adresse1 Allee des Arenes, Balaruc-les-Bains, Hérault
- Maîtrise d'ouvrageCommune de Balaruc-les-Bains
- Date de livraisonMai 2010
- Durée des études19 mois
- Durée du chantier27 mois
- Programmeespace bien-être, bains, piscine extérieure
- Surface1 200 m2
- Budget6,1 M€
- Honoraires archi462 482,08 €
- Honoraires totaux725 340,23 €
- RéglementationRT 2012 – 50 %
- ParticularitésOssature, planchers et bardage en douglas, chauffage par l’excédent d’eau thermale
- Descriptif courtLe centre thermal de Balaruc-les-Bains complète l’offre historique de la station…
- Descriptif longBalaruc-les-Bains est une petite commune de l’Hérault, construite sur les bords …
- ÉquipeTectoniques (architecte, mandataire), Les éclaireurs (Éclairage), Jean-Baptiste Lestra (paysagiste), Igbat&Co (économiste, fluides, structure béton), Jacques Anglade (structure bois)
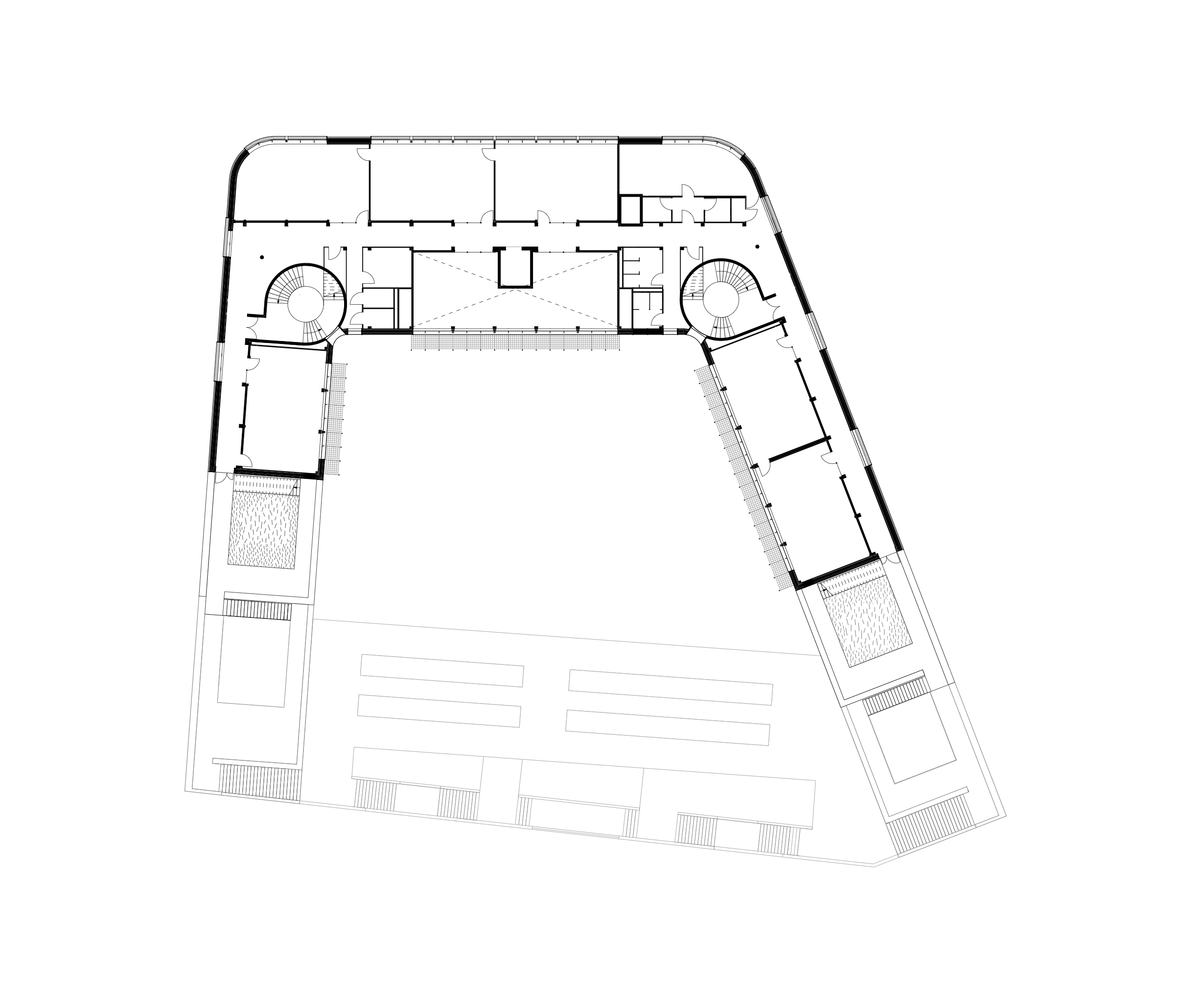
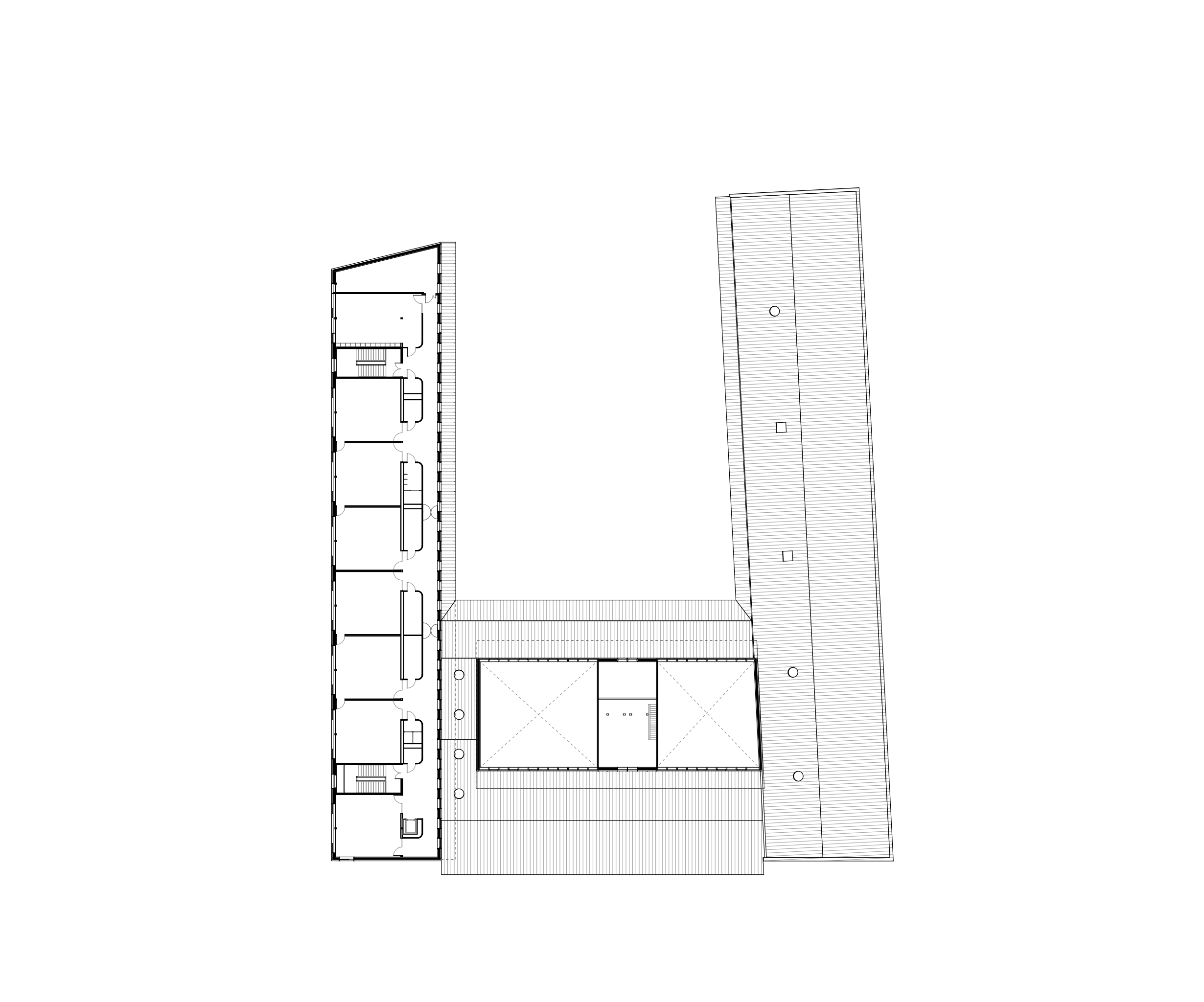
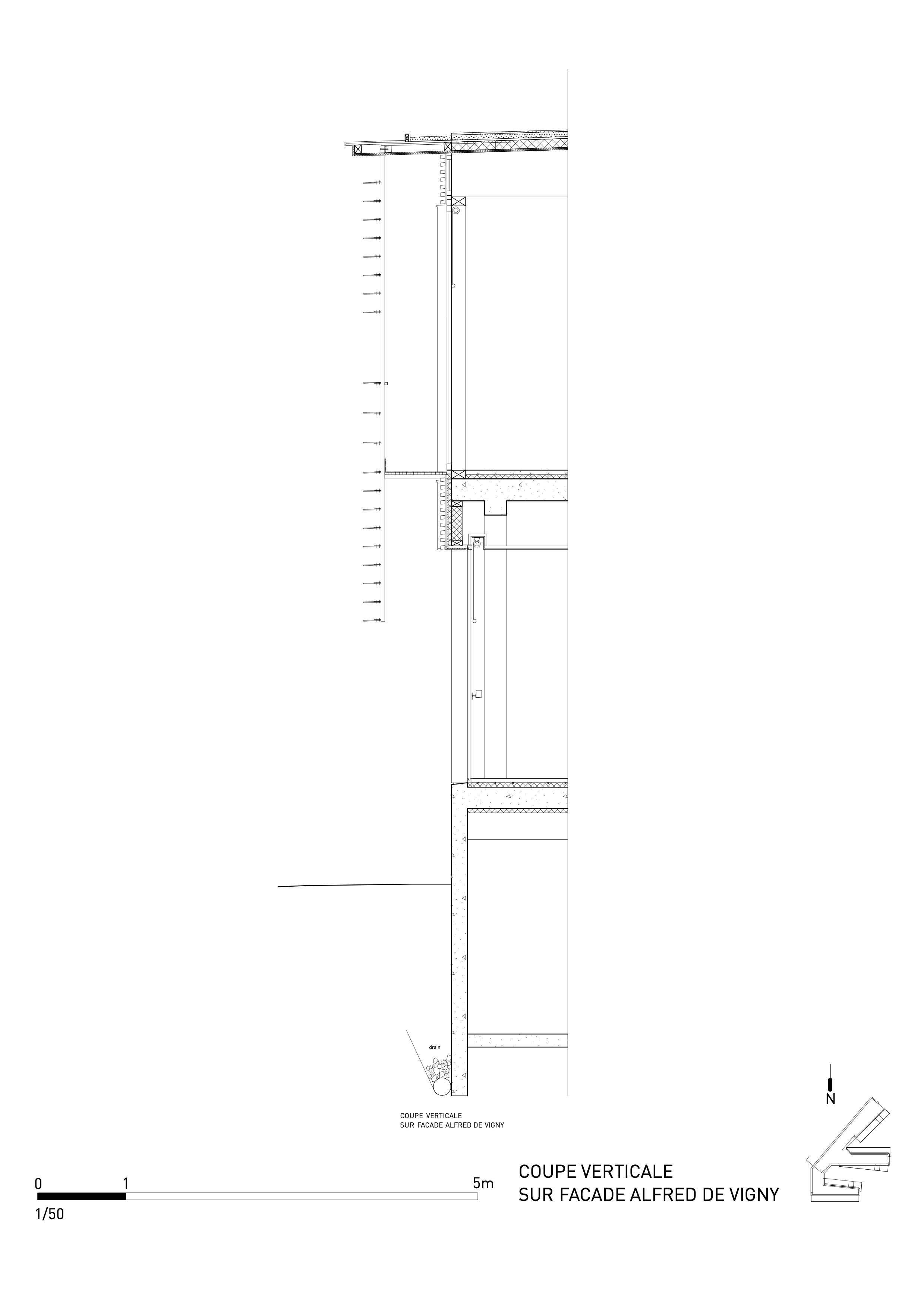
Ehpad
Grenoble
Auvergne-Rhône-Alpes
Santé
2002-2009
Livré
- NomEhpad
- Adresse31 rue Alfred de Vigny, Grenoble, Isère
- Maîtrise d'ouvrageActis
- Date de livraisonOctobre 2009
- Durée des études40 mois
- Durée du chantier47 mois
- Programme80 lits, unité géronto-psychiatrie
- Surface3 700 m2
- Budget7 M€
- Honoraires archi359 430,78 €
- Honoraires totaux593 753 €
- RéglementationRT 2005
- ParticularitésSocle en béton sismique, plancher en métal, façades à ossature bois, toitures végétalisées, collecte des eaux pluviales
- Descriptif courtInstallé sur une parcelle triangulaire en milieu urbain dense, le projet s’adoss…
- Descriptif longLe projet s’insère dans un programme d’aménagement général de la ZAC quartier Vi…
- ÉquipeTectoniques (architecte, mandataire), Iosis (fluides, structure béton, VRD)
Groupe scolaire Antoine de Saint-Exupéry
Annemasse
Auvergne-Rhône-Alpes
Enseignement
2005-2009
Livré
- NomGroupe scolaire Antoine de Saint-Exupéry
- Adresse5 rue Naly, Annemasse, Haute-Savoie
- Maîtrise d'ouvrageMairie d’Annemasse
- Date de livraisonMai 2009
- Durée des études25 mois
- Durée du chantier25 mois
- Programme6 classes maternelles, 8 classes élémentaires, salle polyvalente, gymnase, logement de fonction
- Honoraires archi410 805 €
- Honoraires totaux749 368 €
- ParticularitésFondations et dalle béton, superstructure bois, bardage Trespa
- ÉquipeTectoniques (architecte, mandataire), Coplan (TCE), Concept Bois Structure (structure bois)
Département des recherches archéologiques subaquatiques et sous-marines
Marseille
Provence-Alpes-Côte d'Azur
CultureTertiaire
2003-2009
Livré
- NomDépartement des recherches archéologiques subaquatiques et sous-marines
- Adresse147 Plage de l'estaque, Marseille, Bouches-du-Rhône
- Maîtrise d'ouvrageMinistère de la Culture
- Date de livraisonJanvier 2009
- Durée des études49 mois
- Durée du chantier19 mois
- Programmeateliers, bureaux, laboratoires, conservatoire, salle d’exposition, bibliothèque
- Surface2 885 m2
- Budget4 M€
- Honoraires archi148 106 €
- Honoraires totaux294 677 €
- RéglementationRT 2005
- ParticularitésVentilation naturelle, récupération des eaux pluviales
- ÉquipeTectoniques (architecte, mandataire), OTH Méditerranée (TCE)
Ehpad
Chambéry
Auvergne-Rhône-Alpes
Santé
2005-2008
Livré
- NomEhpad
- Adresseplace Docteur Francois Chiron, Chambéry, Savoie
- Maîtrise d'ouvrageCentre hospitalier de Chambéry
- Date de livraisonDécembre 2008
- Durée des études22 mois
- Durée du chantier20 mois
- Programmeunité de soins de longue durée de 80 lits
- Surface3 082 m2
- Budget5,1 M€
- Honoraires archi367 397 €
- Honoraires totaux641 742 €
- RéglementationRT 2005
- ParticularitésRafraîchissement par puits canadien
- Descriptif courtL’extension de l’hôpital de Chambéry accueille 80 lits pour personnes âgées dépe…
- Descriptif long« Les terrasses de l’horloge » est le nom donné à l’extension de l’hôpital de l’…
- ÉquipeTectoniques (architecte, mandataire), Cholley-Minangoy (économiste), Sechaud et Boussuyt (fluides, QEB, structure bois, structure béton)
Espace nordique
Bessans
Auvergne-Rhône-Alpes
Sport
2006-2008
Livré
- NomEspace nordique
- Adresserue du Carreley, Bessans, Savoie
- Maîtrise d'ouvrageVille de Bessans
- Date de livraisonSeptembre 2008
- Durée des études8 mois
- Durée du chantier15 mois
- ProgrammeLocaux sportifs
- Surface800 m2
- Budget1,8 M€
- Honoraires archi74 093 €
- Honoraires totaux124 074 €
- RéglementationRT 2005
- Consommation130 kWh/m2/an
- ParticularitésBois des Alpes, lauze, chaudière bois, ventilation double flux sur puits canadien
- Descriptif courtÀ l’écart du village, face aux pistes et aux anneaux d’entraînement, l’espace no…
- ÉquipeTectoniques (architecte, mandataire), Jacques Anglade (structure bois), Sechaud et Boussuyt (économiste, électricité, fluides, structure béton)
Restaurant administratif
Bron
Auvergne-Rhône-Alpes
Tertiaire
2005-2007
Livré
- NomRestaurant administratif
- Adresse25 avenue François Mitterrand, Bron, Rhône
- Maîtrise d'ouvrageCETE 69
- Date de livraisonJuin 2007
- Durée des études13 mois
- Durée du chantier12 mois
- Programmerestaurant administratif de 400 couverts
- Surface850 m2
- Budget1,5 M€
- Honoraires archi141 566 €
- Honoraires totaux221 448 €
- RéglementationRT 2005
- CertificationsNF HQE Tertiaire, HPE 2005
- ParticularitésOmbrière de protection thermique, puits canadien
- Descriptif courtLe restaurant administratif du Centre d’études techniques de l’équipement (CETE)…
- Descriptif longLe restaurant inter administratif du Centre d’Etudes Techniques de l’Equipement …
- ÉquipeTectoniques (architecte, mandataire), Sechaud et Boussuyt (structure béton), Jacques Anglade (structure bois), Enertech (électricité, fluides), Cholley-Minangoy (économiste), Fluitec (cuisiniste), Acouphen (acousticien)
Réhabilitation et extension de la Maison du parc du Haut-Jura
Lajoux
Bourgogne-Franche-Comté
Culture
2002-2004
Livré
- NomRéhabilitation et extension de la Maison du parc du Haut-Jura
- Adresse25ter Le Village, Lajoux, Jura
- Maîtrise d'ouvrageParc naturel régional du Haut-Jura
- Date de livraisonSeptembre 2004
- Durée des études16 mois
- Durée du chantier15 mois
- Programmeespaces d'exposition, de réunion et de projection, bureaux
- Surface1 835 m2
- Budget2,2 M€
- ParticularitésChaudière bois alimentée en plaquettes forestières, bois du Jura, tavaillons d’épicéa, récupération des eaux pluviales pour les usages sanitaires
- Descriptif courtL’extension de la Maison du parc du Haut-Jura réinterprète des éléments d’archit…
- ÉquipeTectoniques (architecte, mandataire), Adelfo Scaranello (architecte associé), Ilex (paysagiste), CET ingénierie (électricité, fluides, structure béton), ECPI (économiste)



















































































































































































































































































































































































































































































































































































































































































































































































































































































































































































































































































